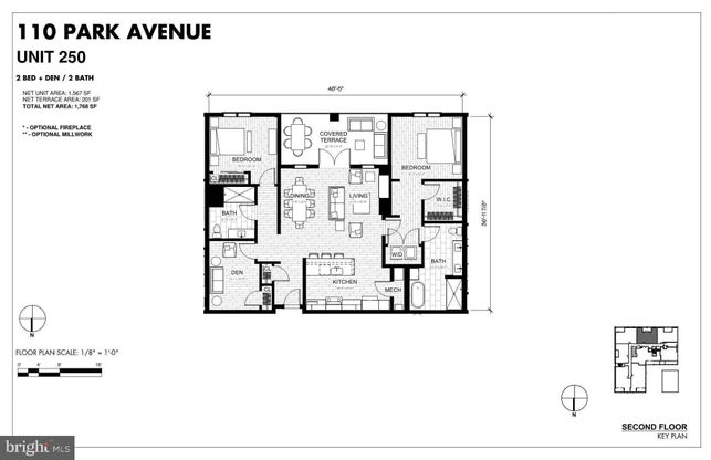
110 PARK Avenue unit: 250
ActiveSwarthmore, PA 19081
110 Park Avenue will bring modern condominium living to the heart of Swarthmore Borough. There will be a total of 31 tastefully designed 1, 2, and 3+ Bedroom Condominiums nestled in the heart of downtown Swarthmore. These beautiful apartments boast exceptional convenience close to the SEPTA rail line into Philadelphia (and NYC), Swarthmore College grounds, activities and lectures, the Public Library, Park Avenue Community Center and wonderful stores and restaurants. Each unit is uniquely designed to optimize elegance, comfort and the integration of outdoor livings spaces. They offer a selection of quartz countertops (upgrade options available), GE Cafe or SubZero/Wolf/Cove appliances, hardwood floors throughout, beautiful custom tile work in the bathrooms, walk-in closets, and more! Every element of convenience has been thoughtfully considered including on-site parking, a fitness room, and the charming outdoor courtyard for residents to enjoy. There are 2 additional units similar to #250 on upper floors at different price points. Please access the website for complete floor plans and additional information. You may contact your Realtor or if you are not represented, the Sales Office at 102 Park Avenue would be very happy to assist you.

1/2
110 PARK Avenue unit: 250
$875,000
- 2 bedrooms
- 2 baths
- 1567 sq ft
- MLS# : PADE2059256
- Built in 0
Nearby schools
- Ridley School District
- Wallingford-swarthmore School District
Actual schools may vary. We recommend verifying with the local school district, the school assignment and enrollment process.
Map & directions
Mortgage rates & offers
Contact
FPO
Compass
Copyright © 2026 Bright MLS. All rights reserved. All information provided by the listing agent/broker is deemed reliable but is not guaranteed and should be independently verified.
Discover More Great Communities
Select additional listings for more information
By providing your name and contact information and clicking the I'm Interested! button, you consent and agree to receive marketing communications from NewHomeSource and the builder(s) selected above, including emails, calls or text messages using an automatic telephone dialing system or an artificial or prerecorded voice. Your agreement is not a condition to purchasing any property, goods or services, and you may call us instead of submitting the information online. You also acknowledge and agree that you can revoke your authorization at any time. Your consent herein also applies to any future registration on national or state Do-No-Call lists. For mobile phones, standard message and data charges apply. Consult our Privacy Policy for additional information, including unsubscribe options. You also agree to our Privacy Policy, including TCPA Policy and Terms of Use.
Way to Go!
An agent will be in contact soon!