390 Abercrombie Point
ActiveGreenwood, SC 29649
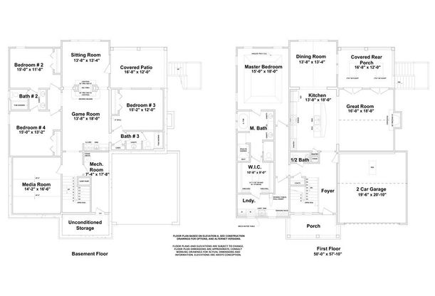
WATERFRONT!!!! New construction on Lake Greenowood in private community of The Retreat. Large wooded lot rolling to the lake. The large Master is on the main floor. Large custom walk in shower, dual vanities, access from closet to laundry room. Great room with vaulted ceilings overlooking the screened porch and lake. Large open kitchen with high end appliances, walk in pantry. Basement is designed for family and guests. 3 bedrooms, great room/game rooma dn media room await the holidays on the lake. Custom trim moldings including wanescoating, coffered ceilings, crown moldings and more. Construction has not started as of Nov 2025. ***information deemed reliable but subject to change without notice.

1/2
390 Abercrombie Point
$849,900
- 4 bedrooms
- 3 baths
- MLS# : 132211
- Built in 2026
Nearby schools
- Greenwood 50 School District
Actual schools may vary. We recommend verifying with the local school district, the school assignment and enrollment process.
Map & directions
Mortgage rates & offers
Contact
FPO
Better Homes & Gardens Real Estate
Copyright © 2026 Greenwood Association of REALTORS. All rights reserved. All information provided by the listing agent/broker is deemed reliable but is not guaranteed and should be independently verified.
Discover More Great Communities
Select additional listings for more information
By providing your name and contact information and clicking the I'm Interested! button, you consent and agree to receive marketing communications from NewHomeSource and the builder(s) selected above, including emails, calls or text messages using an automatic telephone dialing system or an artificial or prerecorded voice. Your agreement is not a condition to purchasing any property, goods or services, and you may call us instead of submitting the information online. You also acknowledge and agree that you can revoke your authorization at any time. Your consent herein also applies to any future registration on national or state Do-No-Call lists. For mobile phones, standard message and data charges apply. Consult our Privacy Policy for additional information, including unsubscribe options. You also agree to our Privacy Policy, including TCPA Policy and Terms of Use.
Way to Go!
An agent will be in contact soon!