10848 N ROBERT DEAN WAY
ActiveCitrus Springs, FL 34434
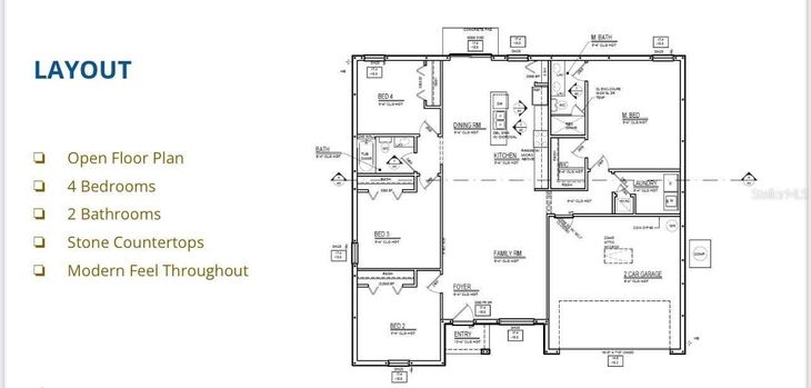
HUGE PRICE REDUCTION on this Beautiful JUST COMPLETED NEW CONSTRUCTION home that is MOVE-IN READY! This 4 bedroom, 2 bath home has a majestic front entrance with a GORGEOUS FRONT ENTRY DOOR! Upon entering, you are greeted with a LARGE OPEN CONCEPT entertaining area with 9'4" HIGH CEILINGS throughout the home. The kitchen and dining areas are located toward the rear of the space, with the living area at the front. Because this is a SPLIT BEDROOMS plan, the primary bedroom is through the doorway on the right, while all 3 of the other bedrooms are on the left side of the entertaining area. The GALLEY KITCHEN features STAINLESS STEEL APPLIANCES, QUARTZ COUNTERTOPS, KITCHEN ISLAND with BREAKFAST BAR, and a PANTRY CLOSET. The kitchen has lots of cabinets and countertop space for storage and food preparation. Going from this area towards the primary suite, you will pass the door to the 2-car garage and then the INSIDE LAUNDRY room before reaching the sanctuary which will be your bedroom. This primary bedroom includes WALK-IN CLOSET and ENSUITE BATHROOM. The bathroom features dual sinks and CERAMIC-TILED SHOWER with a FRAMELESS GLASS SHOWER DOOR. Crossing to the left side of the house, bedroom 2 is accessed from the living area and faces the front yard. Bedrooms 3 and 4 are accessed from the dining area and are separated by the guest bathroom, which also has quartz countertop and a tiled tub surround. The back yard can be accessed through the sliding door in the dining room. With it's close proximity to HWY 41, this home is very conveniently located for the drive to work, or your everyday errands. Schedule your appointment to see this beautiful home, and you'll be glad you did!

1/20
10848 N ROBERT DEAN WAY
$257,000
- 4 bedrooms
- 2 baths
- 1630 sq ft
- MLS# : G5093962
- Built in 2025
Nearby schools
- Citrus County School District
Actual schools may vary. We recommend verifying with the local school district, the school assignment and enrollment process.
Map & directions
Mortgage rates & offers
Contact
FPO
eXp Realty LLC
Copyright © 2025 Stellar MLS. All rights reserved. All information provided by the listing agent/broker is deemed reliable but is not guaranteed and should be independently verified.
Discover More Great Communities
Select additional listings for more information
By providing your name and contact information and clicking the I'm Interested! button, you consent and agree to receive marketing communications from NewHomeSource and the builder(s) selected above, including emails, calls or text messages using an automatic telephone dialing system or an artificial or prerecorded voice. Your agreement is not a condition to purchasing any property, goods or services, and you may call us instead of submitting the information online. You also acknowledge and agree that you can revoke your authorization at any time. Your consent herein also applies to any future registration on national or state Do-No-Call lists. For mobile phones, standard message and data charges apply. Consult our Privacy Policy for additional information, including unsubscribe options. You also agree to our Privacy Policy, including TCPA Policy and Terms of Use.
Way to Go!
An agent will be in contact soon!