2315 Withers St.
ActiveGeorgetown, SC 29440
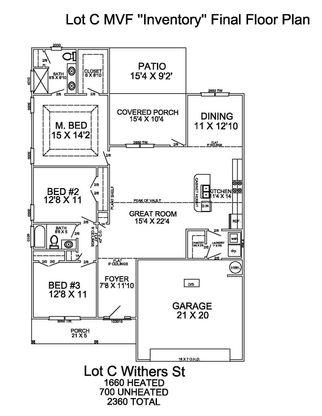
Just Completed! Rare New Construction opportunity very close to Winyah Bay and Downtown Georgetown! Home offers an open floor plan that features a spacious and comfortable kitchen overlooking the dining room and living room with Profiled Cabinets, Quartz Counter Tops and Stainless Appliances. This home feature includes but are not limited to: Open Kitchen with Pantry, Laundry, 5 ft. walk-in tile shower and cultured marble vanity tops in in all baths and **Ion Gray Smart Thermostats** . Located near Historic Georgetown, SC. Come experience the beautiful and sweet life that the Low Country of South Carolina has to offer! Equal Oppurtunity Builder! Building lifestyles for over 40 years, we remain the premier home builder along the Grand Strand. We’re proud to be the 2021, 2022, 2023, and 2024 winners of both WMBF News’ and The Sun News Best Home Builder awards, and the 2025 winner of The Sun News Best Home Builder. 2023, 2024, 2025, & 2026 winners of the Myrtle Beach Herald's Best Residential Real Estate Developer award, and 2024, 2025, & 2026 winners of The Horry Independent’s Best Residential Real Estate Developer and Best New Home Builder award. We began and remain in the Grand Strand, and we want you to experience the local pride we build today and every day in Horry and Georgetown Counties.

1/31
2315 Withers St.
$324,890
- 3 bedrooms
- 2 baths
- 1660 sq ft
- MLS# : 2506267
- Built in 2026
Nearby schools
- Georgetown 01 School District
Actual schools may vary. We recommend verifying with the local school district, the school assignment and enrollment process.
Map & directions
Mortgage rates & offers
Contact
FPO
The Beverly Group
Copyright © 2026 Coastal Carolina Association of REALTORS®. All rights reserved. All information provided by the listing agent/broker is deemed reliable but is not guaranteed and should be independently verified.
Discover More Great Communities
Select additional listings for more information
By providing your name and contact information and clicking the I'm Interested! button, you consent and agree to receive marketing communications from NewHomeSource and the builder(s) selected above, including emails, calls or text messages using an automatic telephone dialing system or an artificial or prerecorded voice. Your agreement is not a condition to purchasing any property, goods or services, and you may call us instead of submitting the information online. You also acknowledge and agree that you can revoke your authorization at any time. Your consent herein also applies to any future registration on national or state Do-No-Call lists. For mobile phones, standard message and data charges apply. Consult our Privacy Policy for additional information, including unsubscribe options. You also agree to our Privacy Policy, including TCPA Policy and Terms of Use.
Way to Go!
An agent will be in contact soon!