0n451 Ellis Avenue
ActiveWheaton, IL 60187
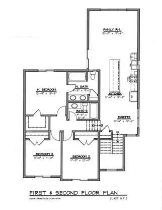
New Construction in Wheaton! Anticipated completion is the end of January 2026. Proudly built by GDP Homes, this custom stick-built residence is just quality craftsmanship throughout. This multi -level home features 3 bedrooms, 3 baths, study with built-in desk, a family room and a rec room. There's plenty of space to live, work, and entertain. The heart of the home is the spacious kitchen, featuring shaker-style 42" cabinets with soft-close drawers and doors, quartz countertops, and a center island with a breakfast bar - perfect for casual meals and gatherings. A full stainless steel appliance package is included. The primary suite offers a relaxing retreat with a large walk-in closet and a thoughtfully designed bathroom, complete with a separate tub and custom tiled shower. Prefinished hardwood flooring adds luxury to the foyer, kitchen, dinette, and and family room areas. High-performance luxury plank flooring adds style and durability in the recreation room, office, and laundry room floors. Throughout the home, you'll find recessed panel doors, oversized base trim finished in crisp white, and airy 9 foot ceilings on the first floor. Built with efficiency in mind, this home includes an energy-efficient furnace, central air, and ducted returns in every bedroom and living space for superior comfort and energy savings - achieving a HERS certified rating. Additional features include: 2x6 exterior wall construction, 30-year architectural roof shingles, low-E argon filled , maintenance-free vinyl windows, 8' garage door, and a maintenance free exterior. Asphalt driveway and fully sodded yard included. No association fees. Conveniently located near schools, shopping, and the Metra train. Amazing low rate financing offer! Call for details! Opportunity is knocking!

1/10
0n451 Ellis Avenue
$699,000
- 3 bedrooms
- 3 baths
- 2011 sq ft
- MLS# : 12367714
- Built in 2025
Nearby schools
- Community School District 200
Actual schools may vary. We recommend verifying with the local school district, the school assignment and enrollment process.
Map & directions
Mortgage rates & offers
Contact
FPO
Keller Williams Success Realty
Copyright © 2025 Midwest Real Estate Data, LLC. All rights reserved. All information provided by the listing agent/broker is deemed reliable but is not guaranteed and should be independently verified.
Discover More Great Communities
Select additional listings for more information
By providing your name and contact information and clicking the I'm Interested! button, you consent and agree to receive marketing communications from NewHomeSource and the builder(s) selected above, including emails, calls or text messages using an automatic telephone dialing system or an artificial or prerecorded voice. Your agreement is not a condition to purchasing any property, goods or services, and you may call us instead of submitting the information online. You also acknowledge and agree that you can revoke your authorization at any time. Your consent herein also applies to any future registration on national or state Do-No-Call lists. For mobile phones, standard message and data charges apply. Consult our Privacy Policy for additional information, including unsubscribe options. You also agree to our Privacy Policy, including TCPA Policy and Terms of Use.
Way to Go!
An agent will be in contact soon!