2219 Ketelsen Drive
ActiveAmes, IA 50010
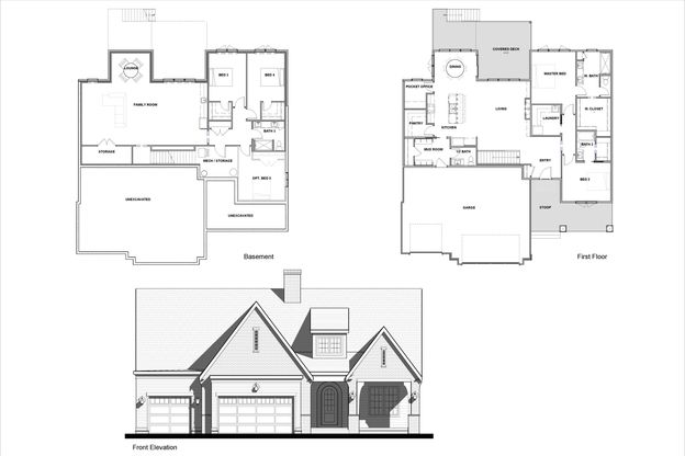
Discover refined living in this beautifully crafted home by Caliber Homes located in the prestigious Quarry Estates neighborhood and the highly sought-after Gilbert School District. Boasting nearly 3,400 finished square feet, this 4-bedroom, 3.5-bath residence combines upscale finishes with versatile living spaces designed for modern lifestyles.The home's stunning brick exterior creates an inviting and distinctive curb appeal. Inside, you'll find premium features such as quartz countertops, custom cabinetry, intricate trim details, and stylish fixtures that elevate every room.The chef's kitchen includes a spacious walk-in pantry and flows effortlessly into the open-concept living and dining areas--perfect for entertaining or everyday living.The luxurious primary suite offers a relaxing retreat with complete with an elegant tiled shower, custom double vanity and an expansive walk-in closet. Three additional bedrooms provide comfort and space for family or guests, with the option to finish a fifth bedroom to suit your needs. A conveniently located half bath on the main level makes hosting effortless.Step outside to enjoy a large covered deck--ideal for relaxing evenings or outdoor gatherings--framed by unobstructed views of Iowa's vibrant sunsets. Just steps from your door, Ada Hayden Heritage Park offers miles of scenic trails, lake views, and green space for year-round enjoyment.A rare opportunity to own a truly special home that blends thoughtful design, premium quality, and an unbeatable location within a top-tier school district.

1/4
2219 Ketelsen Drive
$925,000
- 4 bedrooms
- 3 baths
- 1932 sq ft
- MLS# : 67550
- Built in 2025
Nearby schools
- Ames Comm School District
Actual schools may vary. We recommend verifying with the local school district, the school assignment and enrollment process.
Map & directions
Mortgage rates & offers
Contact
FPO
Iowa Realty-Ankeny
Copyright © 2025 Central Iowa Board of Realtors, Inc.. All rights reserved. All information provided by the listing agent/broker is deemed reliable but is not guaranteed and should be independently verified.
Discover More Great Communities
Select additional listings for more information
By providing your name and contact information and clicking the I'm Interested! button, you consent and agree to receive marketing communications from NewHomeSource and the builder(s) selected above, including emails, calls or text messages using an automatic telephone dialing system or an artificial or prerecorded voice. Your agreement is not a condition to purchasing any property, goods or services, and you may call us instead of submitting the information online. You also acknowledge and agree that you can revoke your authorization at any time. Your consent herein also applies to any future registration on national or state Do-No-Call lists. For mobile phones, standard message and data charges apply. Consult our Privacy Policy for additional information, including unsubscribe options. You also agree to our Privacy Policy, including TCPA Policy and Terms of Use.
Way to Go!
An agent will be in contact soon!