1580 Dekalb Ave
ActiveBrooklyn, NY 11237
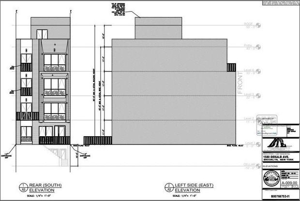
Introducing a prime development opportunity for a 25x100 lot, strategically located and boasting approved plans for a modern 4.5-story building containing 7 residential units. This project promises to deliver a total of 5,500 square feet of living space, designed to meet the demands of today's urban lifestyle. The foundation work has already commenced and is nearing completion, providing a head start for any potential developer or investor looking to capitalize on this exceptional project. With the groundwork laid, you can move forward with construction and bring your vision to life without delay. Making it a competitive offering in a desirable area. The attached plans (1 & 2) provide detailed insights into the layout and design of the building, showcasing the potential for comfortable living spaces that are sure to attract future residents. Don't miss out on this unique opportunity to develop a substantial residential project in a thriving community. Further attachments will provide additional details and insights into the plans and specifications. For more information and to discuss this opportunity further, please feel free to reach out.

1/2
1580 Dekalb Ave
$1,300,000
- 7 baths
- 5500 sq ft
- MLS# : 11524287
- Built in 2025
Nearby schools
- New York City Geographic District #32
Actual schools may vary. We recommend verifying with the local school district, the school assignment and enrollment process.
Map & directions
Mortgage rates & offers
Contact
FPO
5 BORO REALTY CORP
Copyright © 2026 My State MLS. All rights reserved. All information provided by the listing agent/broker is deemed reliable but is not guaranteed and should be independently verified.
Discover More Great Communities
Select additional listings for more information
By providing your name and contact information and clicking the I'm Interested! button, you consent and agree to receive marketing communications from NewHomeSource and the builder(s) selected above, including emails, calls or text messages using an automatic telephone dialing system or an artificial or prerecorded voice. Your agreement is not a condition to purchasing any property, goods or services, and you may call us instead of submitting the information online. You also acknowledge and agree that you can revoke your authorization at any time. Your consent herein also applies to any future registration on national or state Do-No-Call lists. For mobile phones, standard message and data charges apply. Consult our Privacy Policy for additional information, including unsubscribe options. You also agree to our Privacy Policy, including TCPA Policy and Terms of Use.
Way to Go!
An agent will be in contact soon!