4726 Farmhouse ST
ActiveSpringdale, AR 72762
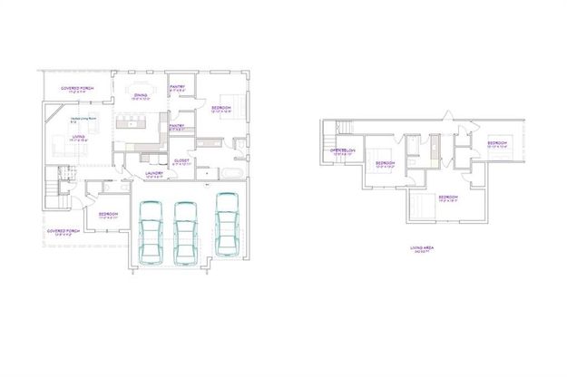
Welcome to Spring Creek Farms, located in the heart of Northwest Arkansas (Cave Springs/Elm Springs). There is something for everyone! A pool, playground & walking trails will be coming in phase 3. Shaw Elementary is just steps away. Enjoy pickleball, tennis, walking trails & more at nearby Shaw Park. Hurry to pick your favorite floor plan, lot & finishes. This neighborhood has spacious lots with many backing up to green space. Call for more details & options available. The Bellingham Plan is a two-level, 5-bed (or 4 beds with a BONUS) & a 2 1/2 bath layout designed with modern living in mind. Features include: 3 car garage, open floor plan, vaulted ceiling with beams, mud bench, gas log fireplace, custom cabinets to the ceiling, gas range with fully vented hood, built-in microwave, a butler's pantry plus a walk-in pantry in the kitchen. The primary suite is on the main level and features a walk-in shower & a free-standing bathtub for the ultimate spa-like experience.

1/11
4726 Farmhouse ST
$549,950
- 5 bedrooms
- 2 baths
- 2465 sq ft
- MLS# : 1313516
- Built in 2025
Nearby schools
- Springdale School District
Actual schools may vary. We recommend verifying with the local school district, the school assignment and enrollment process.
Map & directions
Mortgage rates & offers
Contact
FPO
Collier Properties
Copyright © 2025 Northwest Arkansas Board of REALTORS®. All rights reserved. All information provided by the listing agent/broker is deemed reliable but is not guaranteed and should be independently verified.
Discover More Great Communities
Select additional listings for more information
By providing your name and contact information and clicking the I'm Interested! button, you consent and agree to receive marketing communications from NewHomeSource and the builder(s) selected above, including emails, calls or text messages using an automatic telephone dialing system or an artificial or prerecorded voice. Your agreement is not a condition to purchasing any property, goods or services, and you may call us instead of submitting the information online. You also acknowledge and agree that you can revoke your authorization at any time. Your consent herein also applies to any future registration on national or state Do-No-Call lists. For mobile phones, standard message and data charges apply. Consult our Privacy Policy for additional information, including unsubscribe options. You also agree to our Privacy Policy, including TCPA Policy and Terms of Use.
Way to Go!
An agent will be in contact soon!