1 Cameron Court
ActiveHampstead, NH 03841
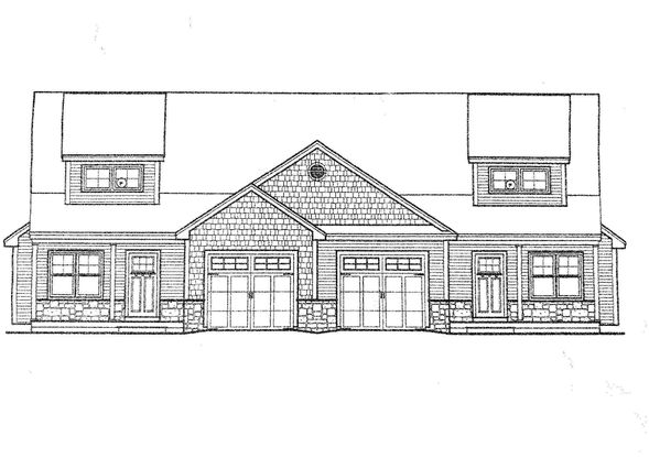
NEW CONSTRUCTION!! 20 Units total. 55+ community, Cameron Commons! Hampstead, NH. Includes first floor master with two large closets with beautiful wooden shelving, ceiling fan, and crown molding, second bedroom upstairs , loft can be open or closed , extra space or office bonus room on second floor as well. Solid core interior doors, wainscotting in dining area, quartz countertops, lots of recessed lighting throughout, electric fireplace with floor to ceiling shiplap, LVP flooring throughout , upgraded ceramic/ marble tile in master shower and bathroom floors, large rear paver deck, front porch accented pavers, rear yards to allow for flower plantings and /or small garden. Community water, small association fee to be approx 375$. Open houses every weekend. Put 70 Depot Rd hampstead in GPS to locate road. Registration with the NH Attorney General remains pending and only non-binding reservations can be accepted at this time. We are now offering optional first and second floor plans. Minutes to routes 93 and 495. Plus shopping

1/59
1 Cameron Court
$699,000
- 2 bedrooms
- 2 baths
- 1860 sq ft
- MLS# : 5050428
- Built in 2025
Nearby schools
- Hampstead School District
Actual schools may vary. We recommend verifying with the local school district, the school assignment and enrollment process.
Map & directions
Mortgage rates & offers
Contact
FPO
Prosale Realty, LLC
Copyright © 2026 PrimeMLS. All rights reserved. All information provided by the listing agent/broker is deemed reliable but is not guaranteed and should be independently verified.
Discover More Great Communities
Select additional listings for more information
By providing your name and contact information and clicking the I'm Interested! button, you consent and agree to receive marketing communications from NewHomeSource and the builder(s) selected above, including emails, calls or text messages using an automatic telephone dialing system or an artificial or prerecorded voice. Your agreement is not a condition to purchasing any property, goods or services, and you may call us instead of submitting the information online. You also acknowledge and agree that you can revoke your authorization at any time. Your consent herein also applies to any future registration on national or state Do-No-Call lists. For mobile phones, standard message and data charges apply. Consult our Privacy Policy for additional information, including unsubscribe options. You also agree to our Privacy Policy, including TCPA Policy and Terms of Use.
Way to Go!
An agent will be in contact soon!