3326 NW Leavitt Lane
ActiveBend, OR 97703
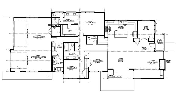
This single-level Mid-Century Modern home by Structure Development NW blends timeless design with modern luxury in Bend's sought-after Discovery West neighborhood. Thoughtfully crafted, it features 3 bedrooms, 2.5 baths, and a versatile den--ideal for a home office or guest space. The open-concept layout offers seamless flow between the living, dining, and kitchen areas, highlighted by clean lines, expansive windows, and abundant natural light. The gourmet kitchen is a showstopper with high-end appliances, custom cabinetry, and a large central island perfect for entertaining. The primary suite includes a tile shower, dual vanity, and walk-in closet. Two additional bedrooms ensure plenty of space for family or visitors. A spacious 3-car garage provides ample storage, with a third bay tall enough to accommodate a Sprinter van. Professionally landscaped and designed for outdoor enjoyment, this home sits in a vibrant, walkable community known for parks, trails, and architectural diversity.

1/30
3326 NW Leavitt Lane
$1,748,500
- 3 bedrooms
- 2 baths
- 2460 sq ft
- MLS# : 220206063
- Built in 2025
Nearby schools
- Bend-lapine Schools
- Redmond School District 2j
Actual schools may vary. We recommend verifying with the local school district, the school assignment and enrollment process.
Map & directions
Mortgage rates & offers
Contact
FPO
Stellar Realty Northwest
Copyright © 2026 MLS of Central Oregon. All rights reserved. All information provided by the listing agent/broker is deemed reliable but is not guaranteed and should be independently verified.
Discover More Great Communities
Select additional listings for more information
By providing your name and contact information and clicking the I'm Interested! button, you consent and agree to receive marketing communications from NewHomeSource and the builder(s) selected above, including emails, calls or text messages using an automatic telephone dialing system or an artificial or prerecorded voice. Your agreement is not a condition to purchasing any property, goods or services, and you may call us instead of submitting the information online. You also acknowledge and agree that you can revoke your authorization at any time. Your consent herein also applies to any future registration on national or state Do-No-Call lists. For mobile phones, standard message and data charges apply. Consult our Privacy Policy for additional information, including unsubscribe options. You also agree to our Privacy Policy, including TCPA Policy and Terms of Use.
Way to Go!
An agent will be in contact soon!