201 Braxton Drive
ActiveMoore, SC 29369
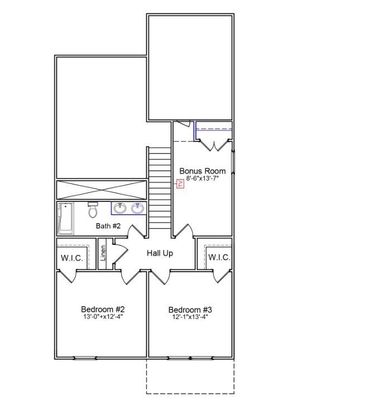
Welcome to this stunning Evans floorplan by Mungo Homes, a perfect blend of style, space, and modern design. This beautiful home features 3 spacious bedrooms, 2.5 baths, and 1,736 square feet of impeccable design with an open, inviting layout that is perfect for both family living and entertaining. The heart of the home is the well-appointed kitchen, featuring sleek countertops, modern appliances, and ample cabinet space. It flows effortlessly into the dining area and family room, making it ideal for gatherings and family dinners. A convenient half bath is located just off the main living area for added guest convenience. The first floor has all upgraded LVP flooring and carpet upstairs. The Primary bedroom is large and on the first floor: it connects to a generous walk-in closet, 5 -foot shower, two sinks in the large vanity along with a linen closet. Two additional well-sized bedrooms are located upstairs, sharing a full bath. Perfect for guests, these rooms provide comfort and privacy. Upstairs is Flex space perfect for a playroom, gym, home office or additional living space. Call us today to schedule an appointment or come visit the model home today.

1/3
201 Braxton Drive
$244,000
- 3 bedrooms
- 2 baths
- 1735 sq ft
- MLS# : 326675
- Built in 2025
Nearby schools
- Spartanburg 05 School District
- Spartanburg 06 School District
Actual schools may vary. We recommend verifying with the local school district, the school assignment and enrollment process.
Map & directions
Mortgage rates & offers
Contact
FPO
MUNGO HOMES PROPERTIES LLC GREENVILLE
Copyright © 2025 Spartanburg Association of REALTORS, Inc.. All rights reserved. All information provided by the listing agent/broker is deemed reliable but is not guaranteed and should be independently verified.
Discover More Great Communities
Select additional listings for more information
By providing your name and contact information and clicking the I'm Interested! button, you consent and agree to receive marketing communications from NewHomeSource and the builder(s) selected above, including emails, calls or text messages using an automatic telephone dialing system or an artificial or prerecorded voice. Your agreement is not a condition to purchasing any property, goods or services, and you may call us instead of submitting the information online. You also acknowledge and agree that you can revoke your authorization at any time. Your consent herein also applies to any future registration on national or state Do-No-Call lists. For mobile phones, standard message and data charges apply. Consult our Privacy Policy for additional information, including unsubscribe options. You also agree to our Privacy Policy, including TCPA Policy and Terms of Use.
Way to Go!
An agent will be in contact soon!