373 Prosperity Lane
ActiveMoore, SC 29369
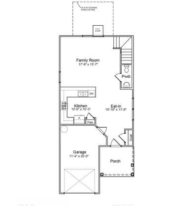
Welcome to Mungo homes Bartow floorplan! This thoughtfully designed two-story home featuring three bedrooms and two-and-a-half bathrooms. Just off the entryway, a cozy dining area flows seamlessly into the stylish kitchen, which boasts Shaker-style cabinets, granite countertops, and a tile backsplash. The open-concept design connects the kitchen to the spacious great room, making it perfect for entertaining. Luxury vinyl plank flooring extends throughout the main floor, combining durability with modern appeal. Upstairs, the primary suite offers a peaceful retreat with a vaulted ceiling, a spacious walk-in closet, and an en-suite bathroom featuring dual sinks and a five-foot shower. Two additional bedrooms, a second full bathroom, and a conveniently located laundry room complete the second floor. Nestled just a stone’s throw from Linville Hills Park and surrounded by mature trees, this home offers the perfect blend of tranquility and convenience. Located just minutes from Downtown Spartanburg, Braxton Place provides easy access to shopping, schools, hospitals, and major highways, including I-26 and I-85. Residents are also zoned for the highly sought-after Dorman High School and are just 1.2 miles from R.P. Dawkins Middle School. Don’t miss this opportunity to own a beautiful home in a prime location! Schedule a tour today and explore all that Braxton Place provides.es.

1/3
373 Prosperity Lane
$229,000
- 3 bedrooms
- 2 baths
- 1476 sq ft
- MLS# : 326678
- Built in 2025
Nearby schools
- Spartanburg 05 School District
- Spartanburg 06 School District
Actual schools may vary. We recommend verifying with the local school district, the school assignment and enrollment process.
Map & directions
Mortgage rates & offers
Contact
FPO
MUNGO HOMES PROPERTIES LLC GREENVILLE
Copyright © 2025 Spartanburg Association of REALTORS, Inc.. All rights reserved. All information provided by the listing agent/broker is deemed reliable but is not guaranteed and should be independently verified.
Discover More Great Communities
Select additional listings for more information
By providing your name and contact information and clicking the I'm Interested! button, you consent and agree to receive marketing communications from NewHomeSource and the builder(s) selected above, including emails, calls or text messages using an automatic telephone dialing system or an artificial or prerecorded voice. Your agreement is not a condition to purchasing any property, goods or services, and you may call us instead of submitting the information online. You also acknowledge and agree that you can revoke your authorization at any time. Your consent herein also applies to any future registration on national or state Do-No-Call lists. For mobile phones, standard message and data charges apply. Consult our Privacy Policy for additional information, including unsubscribe options. You also agree to our Privacy Policy, including TCPA Policy and Terms of Use.
Way to Go!
An agent will be in contact soon!