1424 Chatham Ridge Court
ActiveWestfield, IN 46074
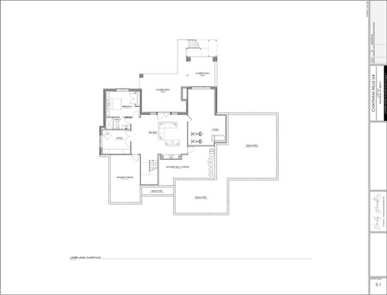
New home just started in the beautiful golf community of Chatham Hills. 6 beds, 4 1/2 baths, a walkout basement looking out to a large pond located right across from Homearama homes 2025. Still time to make all selections. Built by Rise Builders with Pella Windows, quartz counters, custom Amish made cabinets and vanities and built ins with kitchen cabinets going to the ceiling, custom tiled zero clearance showers and bathroom floors, stunning 2 story foyer entrance with custom stairs to second floor, laundry set up in walk in master closet as well as a full laundry room on second floor, covered porch on first floor looking out to the fountain on the pond with automatic screens with fireplace with a full patio below coming out of the basement. Huge finished basement with a fitness room (sauna not included in price), wet bar, rec area, office, full bath and bedroom. Great floor plan that can meet any families desires. Floor plans and elevations are in attachments.

1/11
1424 Chatham Ridge Court
$1,950,000
- 6 bedrooms
- 4 baths
- 5694 sq ft
- MLS# : 22047154
- Built in 2025
Nearby schools
- Westfield-washington Schools
Actual schools may vary. We recommend verifying with the local school district, the school assignment and enrollment process.
Map & directions
Mortgage rates & offers
Contact
FPO
SGA Enterprises, Inc
Copyright © 2026 MIBOR Service Corporation. All rights reserved. All information provided by the listing agent/broker is deemed reliable but is not guaranteed and should be independently verified.
Discover More Great Communities
Select additional listings for more information
By providing your name and contact information and clicking the I'm Interested! button, you consent and agree to receive marketing communications from NewHomeSource and the builder(s) selected above, including emails, calls or text messages using an automatic telephone dialing system or an artificial or prerecorded voice. Your agreement is not a condition to purchasing any property, goods or services, and you may call us instead of submitting the information online. You also acknowledge and agree that you can revoke your authorization at any time. Your consent herein also applies to any future registration on national or state Do-No-Call lists. For mobile phones, standard message and data charges apply. Consult our Privacy Policy for additional information, including unsubscribe options. You also agree to our Privacy Policy, including TCPA Policy and Terms of Use.
Way to Go!
An agent will be in contact soon!