4519 E Walker Street
ActiveInverness, FL 34453
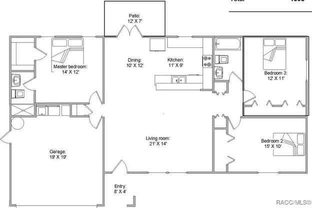
Completed New Construction! This beautifully designed 3-bedroom, 2-bathroom home offers a desirable split floor plan, 2-car garage, covered front porch, and rear patio-perfect for enjoying Florida living. The spacious owner's suite features a private bath with dual sinks and a walk-in closet. Two additional bedrooms offer generous space and large closets. Indoor laundry is conveniently located in the garage. No HOA. No CDD. Not located in a flood zone. Ideal as a primary residence, seasonal home, or investment/rental property with strong income potential. May qualify for zero-down financing (buyer to verify). Seller is offering concessions toward buyer closing costs or interest rate buydown with approved lender. Located in the heart of Inverness, close to historic downtown, the Valerie Theatre, Courthouse Square, the Inverness Depot, lakes, parks, shopping, dining, and the Withlacoochee State Trail. Walker Street is an unpaved, privately maintained road. Buyer and buyer's agent to verify all information.

1/10
4519 E Walker Street
$230,000
- 3 bedrooms
- 2 baths
- 1347 sq ft
- MLS# : 846271
- Built in 2025
Map & directions
Mortgage rates & offers
Contact
FPO
Tropic Shores Realty
Copyright © 2026 REALTORS Association of Citrus County, Inc.. All rights reserved. All information provided by the listing agent/broker is deemed reliable but is not guaranteed and should be independently verified.
Discover More Great Communities
Select additional listings for more information
By providing your name and contact information and clicking the I'm Interested! button, you consent and agree to receive marketing communications from NewHomeSource and the builder(s) selected above, including emails, calls or text messages using an automatic telephone dialing system or an artificial or prerecorded voice. Your agreement is not a condition to purchasing any property, goods or services, and you may call us instead of submitting the information online. You also acknowledge and agree that you can revoke your authorization at any time. Your consent herein also applies to any future registration on national or state Do-No-Call lists. For mobile phones, standard message and data charges apply. Consult our Privacy Policy for additional information, including unsubscribe options. You also agree to our Privacy Policy, including TCPA Policy and Terms of Use.
Way to Go!
An agent will be in contact soon!