4368 Hunt Avenue
ActiveSaint Louis, MO 63110
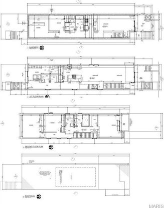
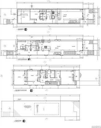
Your dream home in The Grove, to be built your way. This 2,600 sq ft new construction offers a rare choice: enjoy it as a 5 bed, 3.5 bath single-family home or opt for a 3 bed, 2.5 bath main residence plus a walk-out garden apartment with 2 beds, 1 bath, private laundry, and full kitchen—perfect for guests, rental income, or multi-generational living. Soaring ceilings, an open floor plan, and a show-stopping kitchen with waterfall island seating set the stage for modern living. Main floor laundry, luxury vinyl tile throughout, and an appliance package allowance with gas range option add style and convenience. Bathrooms feature striking tile with onyx accents, while the primary suite boasts a spa-like bath, large walk-in closet, and private balcony. Hardy board siding and optional detached carport add curb appeal. Buyers select all finishes, with allowances where noted. Live steps from The Grove’s restaurants, nightlife, and culture in a home designed just for you.

1/8
4368 Hunt Avenue
$650,000
- 5 bedrooms
- 3 baths
- 2600 sq ft
- MLS# : 25054110
- Built in 0
Nearby schools
- St. Louis City Schools
Actual schools may vary. We recommend verifying with the local school district, the school assignment and enrollment process.
Map & directions
Mortgage rates & offers
Contact
FPO
Tumminello Realty LLC
Copyright © 2026 Mid America Regional Information Systems, Inc.. All rights reserved. All information provided by the listing agent/broker is deemed reliable but is not guaranteed and should be independently verified.
Discover More Great Communities
Select additional listings for more information
By providing your name and contact information and clicking the I'm Interested! button, you consent and agree to receive marketing communications from NewHomeSource and the builder(s) selected above, including emails, calls or text messages using an automatic telephone dialing system or an artificial or prerecorded voice. Your agreement is not a condition to purchasing any property, goods or services, and you may call us instead of submitting the information online. You also acknowledge and agree that you can revoke your authorization at any time. Your consent herein also applies to any future registration on national or state Do-No-Call lists. For mobile phones, standard message and data charges apply. Consult our Privacy Policy for additional information, including unsubscribe options. You also agree to our Privacy Policy, including TCPA Policy and Terms of Use.
Way to Go!
An agent will be in contact soon!