1 Valley Vista Rd
ActiveByrdstown, TN 38549
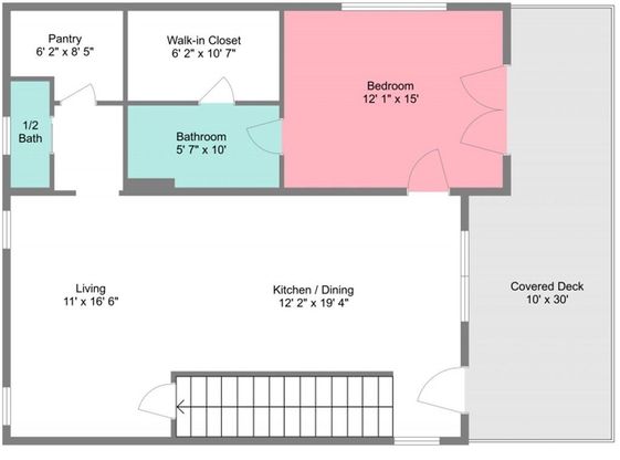
Welcome to your dream retreat at Paradise View on Dale Hollow Lake-where modern luxury meets laid-back lake life. This new construction home offers 2,000+ sq ft across three levels, with 3 bedrooms, 3.5 baths, and a fully finished walkout basement with kitchenette and full bath-perfect for entertaining or creating a private guest space. Enjoy high-end finishes throughout or customize to make it uniquely yours. Set in the exclusive Paradise View community, this rare lakefront opportunity is more than a home-it's an experience. Paddle calm waters in the morning, cruise from your reserved slip at The Plankyard in the afternoon, and gather on your covered deck or by the fire pit at night. Community perks include a pool, party barn, and golf cart paths to the marina. Ideal as a primary home, luxury getaway, or investment property. Construction is underway-secure your slice of lakefront paradise now.

1/13
1 Valley Vista Rd
$799,000
- 3 bedrooms
- 3 baths
- 2607 sq ft
- MLS# : 238669
- Built in 2026
Nearby schools
- Pickett County Schools
Actual schools may vary. We recommend verifying with the local school district, the school assignment and enrollment process.
Map & directions
Mortgage rates & offers
Contact
FPO
Lenihan Sotheby's International Realty
Copyright © 2026 Upper Cumberland Association of Realtors. All rights reserved. All information provided by the listing agent/broker is deemed reliable but is not guaranteed and should be independently verified.
Discover More Great Communities
Select additional listings for more information
By providing your name and contact information and clicking the I'm Interested! button, you consent and agree to receive marketing communications from NewHomeSource and the builder(s) selected above, including emails, calls or text messages using an automatic telephone dialing system or an artificial or prerecorded voice. Your agreement is not a condition to purchasing any property, goods or services, and you may call us instead of submitting the information online. You also acknowledge and agree that you can revoke your authorization at any time. Your consent herein also applies to any future registration on national or state Do-No-Call lists. For mobile phones, standard message and data charges apply. Consult our Privacy Policy for additional information, including unsubscribe options. You also agree to our Privacy Policy, including TCPA Policy and Terms of Use.
Way to Go!
An agent will be in contact soon!