530 N Highview Avenue
ActiveHernando, FL 34442
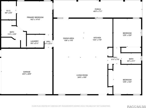
Through Build & Lock(TM), the builder is offering a 30 year fixed-rate as low as 5.375%. Terms apply. Welcome to this beautifully crafted 3-bedroom, 2-bathroom single-family home, located in the highly sought-after Citrus Hills community. This home combines quality craftsmanship with timeless farmhouse charm. Situated on over 1 acre, the property offers peace, privacy, and plenty of space to enjoy Florida living. Inside, you'll find an expansive open floor plan with nearly 2,000 sq ft of living space, including a large living room perfect for entertaining or relaxing. Enjoy your morning coffee on the welcoming front porch, and unwind in the evenings on the spacious back porch-ideal for outdoor dining, family gatherings, or simply taking in the serene surroundings. The home's farmhouse style is both cozy and elegant, with thoughtfully designed spaces that feel open, bright, and inviting. Don't miss your chance to own a Bruce Kaufman-built home in one of Citrus County's most desirable neighborhoods!

1/20
530 N Highview Avenue
$475,000
- 3 bedrooms
- 2 baths
- 1999 sq ft
- MLS# : 847779
- Built in 2025
Nearby schools
- Citrus County School District
Actual schools may vary. We recommend verifying with the local school district, the school assignment and enrollment process.
Map & directions
Mortgage rates & offers
Contact
FPO
Century21 J.W. Morton Real Estate, Inc
Copyright © 2026 REALTORS Association of Citrus County, Inc.. All rights reserved. All information provided by the listing agent/broker is deemed reliable but is not guaranteed and should be independently verified.
Discover More Great Communities
Select additional listings for more information
By providing your name and contact information and clicking the I'm Interested! button, you consent and agree to receive marketing communications from NewHomeSource and the builder(s) selected above, including emails, calls or text messages using an automatic telephone dialing system or an artificial or prerecorded voice. Your agreement is not a condition to purchasing any property, goods or services, and you may call us instead of submitting the information online. You also acknowledge and agree that you can revoke your authorization at any time. Your consent herein also applies to any future registration on national or state Do-No-Call lists. For mobile phones, standard message and data charges apply. Consult our Privacy Policy for additional information, including unsubscribe options. You also agree to our Privacy Policy, including TCPA Policy and Terms of Use.
Way to Go!
An agent will be in contact soon!