6 Shirley Commons Place
ActiveProvidence Forge, VA 23140
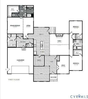
NEW COMMUNITY - SHIRLEY COMMONS NOW SELLING! Seven private cul-de-sac lots; 2 - 2.6 acres with NO HOA! To be built. Build this home or select from another floorplan. Welcome to The Highland, Shurm Homes' newest single level living floorplan. This impressive, sprawling home perfectly invokes the rural vibes of New Kent County. With a large variety of options to personalize this home, The Highland doesn't disappoint! This home starts as a 3 bedroom, 2.5 bath home at 30309 sq ft but can be expanded and customized to fit your needs by adding additional second floor space. Outside enjoy your private 2.6 acre wooded lot. Patio included but add a front porch, rear porch or deck to maximize outdoor space. No HOA so you can enjoy your land as you please. LIST PRICE REFLECTS INCLUDED FEATURES AS STANDARD: Colonial elevation (or upgrade to Craftsman or Farmhouse) 9' ceilings; Fireplace; Kitchen features - Island, 42" cabinets, granite, pantry; Primary bath features - tiled shower & floors, raised vanity; engineered hardwoods in foyer, flex, kitchen, dinette area and more! Pictures are of previously built homes and may not reflect final selections and look of final home. Limited time incentive of $15,000 towards closing costs! *Must use builder's preferred lender and closing attorney.

1/5
6 Shirley Commons Place
$739,950
- 3 bedrooms
- 2 baths
- 3039 sq ft
- MLS# : 2525211
- Built in 2025
Map & directions
Mortgage rates & offers
Contact
FPO
Realty Richmond
Copyright © 2026 Central Virginia Regional Multiple Listing Service. All rights reserved. All information provided by the listing agent/broker is deemed reliable but is not guaranteed and should be independently verified.
Discover More Great Communities
Select additional listings for more information
By providing your name and contact information and clicking the I'm Interested! button, you consent and agree to receive marketing communications from NewHomeSource and the builder(s) selected above, including emails, calls or text messages using an automatic telephone dialing system or an artificial or prerecorded voice. Your agreement is not a condition to purchasing any property, goods or services, and you may call us instead of submitting the information online. You also acknowledge and agree that you can revoke your authorization at any time. Your consent herein also applies to any future registration on national or state Do-No-Call lists. For mobile phones, standard message and data charges apply. Consult our Privacy Policy for additional information, including unsubscribe options. You also agree to our Privacy Policy, including TCPA Policy and Terms of Use.
Way to Go!
An agent will be in contact soon!