9982 164th Drive
ActiveHoward Beach, NY 11414
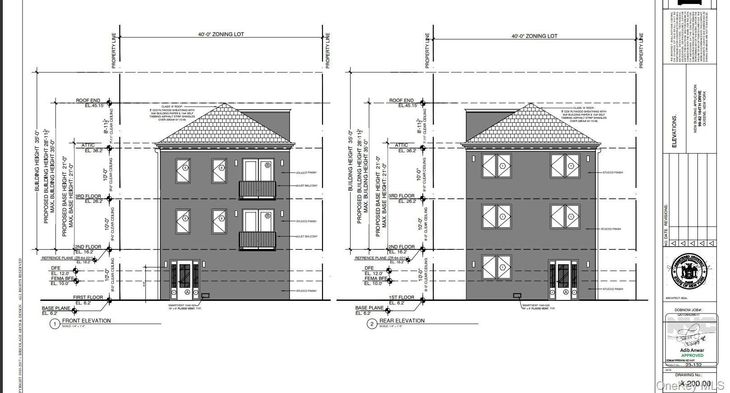
THIS IS FOR LAND WITH APPROVED PLANS ONLY. YOU MUST BUILD THE HOUSE YOURSELF. It took me over 18 months to this Approved. Nice Two Family, both units have two levels, Three Bedrooms, Two Bathrooms (in each unit) About 3200 Square Feet in total. Will easily sell for over $1.2 Million. House is one block away from Hamilton Beach Park, effectively a private beach and private park. THIS IS BEING OFFERED WITH TWO ATTACHED APPROVED LOTS, ONE FOR A SINGLE FAMILY AND ONE FOR AN ADDITIONAL TWO FAMILY

1/2
9982 164th Drive
$298,700
- 6 bedrooms
- 4 baths
- MLS# : 920637
- Built in 2026
Nearby schools
- New York City Geographic District #27
Actual schools may vary. We recommend verifying with the local school district, the school assignment and enrollment process.
Map & directions
Mortgage rates & offers
Contact
FPO
LMPK Realty
Copyright © 2026 OneKey MLS. All rights reserved. All information provided by the listing agent/broker is deemed reliable but is not guaranteed and should be independently verified.
Discover More Great Communities
Select additional listings for more information
By providing your name and contact information and clicking the I'm Interested! button, you consent and agree to receive marketing communications from NewHomeSource and the builder(s) selected above, including emails, calls or text messages using an automatic telephone dialing system or an artificial or prerecorded voice. Your agreement is not a condition to purchasing any property, goods or services, and you may call us instead of submitting the information online. You also acknowledge and agree that you can revoke your authorization at any time. Your consent herein also applies to any future registration on national or state Do-No-Call lists. For mobile phones, standard message and data charges apply. Consult our Privacy Policy for additional information, including unsubscribe options. You also agree to our Privacy Policy, including TCPA Policy and Terms of Use.
Way to Go!
An agent will be in contact soon!