2104 Junior Deputy Road
ActiveLittle Rock, AR 72205
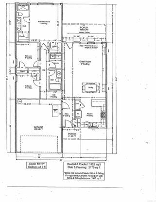
There is a demand for AFFORDABLE HOUSING .... this builder is offering BRAND NEW affordable homes next door to each other. QUALITY construction 3 BR, 2 full baths, spacious greatroom-dining area opens to kitchen w/ pantry. Breakfast bar for bar chairs /stools. Quality cabinets w/ quartz countertops. Electric range, microwave & dishwasher. 9' Ceilings throughout. Laundry room, 2 walk-in closets in primary bedroom. Primary bath with tiled walk-in shower and double vanity. Vinyl plank flooring throughout. Double garage. Porch with vaulted ceiling off the greatroom. So convenient to Baptist Hospital & doctors' offices and just off Shackleford to the West. Completion in December. Information on finish features, colors & light fixtures in Associated Docs and in the house. AFFORDABLE QUALITY!!

1/2
2104 Junior Deputy Road
$285,000
- 3 bedrooms
- 2 baths
- 1529 sq ft
- MLS# : 25040619
- Built in 2025
Nearby schools
- Little Rock School District
Actual schools may vary. We recommend verifying with the local school district, the school assignment and enrollment process.
Map & directions
Mortgage rates & offers
Contact
FPO
Adkins & Associates Real Estate
Copyright © 2025 Cooperative Arkansas Realtors Multiple Listing Service. All rights reserved. All information provided by the listing agent/broker is deemed reliable but is not guaranteed and should be independently verified.
Discover More Great Communities
Select additional listings for more information
By providing your name and contact information and clicking the I'm Interested! button, you consent and agree to receive marketing communications from NewHomeSource and the builder(s) selected above, including emails, calls or text messages using an automatic telephone dialing system or an artificial or prerecorded voice. Your agreement is not a condition to purchasing any property, goods or services, and you may call us instead of submitting the information online. You also acknowledge and agree that you can revoke your authorization at any time. Your consent herein also applies to any future registration on national or state Do-No-Call lists. For mobile phones, standard message and data charges apply. Consult our Privacy Policy for additional information, including unsubscribe options. You also agree to our Privacy Policy, including TCPA Policy and Terms of Use.
Way to Go!
An agent will be in contact soon!