2028 N ORIANNA Street
ActivePhiladelphia, PA 19122
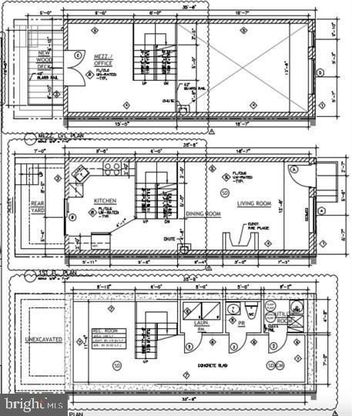
Seller developer financing options available. Price dropped for buyer equity capture pre-construction pricing. This ready-to-build property comes with approved plans, permits, and geotech complete. The design includes a 3BR/2.5BA home with rooftop deck and skyline views, plus the option for a 4th bedroom. Tailor the home to your style with customizable finishes and design changes. With comps at $490K, you're stepping in with instant equity. Our lending partners also offer 203k renovation and conventional homestyle loans to make the process seamless. Owning new construction in this thriving location is close to northern Liberties, Fishtown and all of the developing boom in the area. Owner is motivated and your options are endless! This deeply reduced and updated price is for the vanilla builder grade finishes laminate floors, vinyl siding, 9 foot basic kitchen and basic bathroom finishes white subway tile, basic light fixtures and no upgrade options. Buyer may elect upgrades which can be added to the price and built in to the agreement for completion. Seller encourages all offers. The lot is also available for sale with the plans only and buyer may elect their own builder.

1/18
2028 N ORIANNA Street
$349,000
- MLS# : PAPH2541216
- Built in 0
Nearby schools
- The School District Of Philadelphia
Actual schools may vary. We recommend verifying with the local school district, the school assignment and enrollment process.
Map & directions
Mortgage rates & offers
Contact
FPO
Ergo Real Estate Company
Copyright © 2025 Bright MLS. All rights reserved. All information provided by the listing agent/broker is deemed reliable but is not guaranteed and should be independently verified.
Discover More Great Communities
Select additional listings for more information
By providing your name and contact information and clicking the I'm Interested! button, you consent and agree to receive marketing communications from NewHomeSource and the builder(s) selected above, including emails, calls or text messages using an automatic telephone dialing system or an artificial or prerecorded voice. Your agreement is not a condition to purchasing any property, goods or services, and you may call us instead of submitting the information online. You also acknowledge and agree that you can revoke your authorization at any time. Your consent herein also applies to any future registration on national or state Do-No-Call lists. For mobile phones, standard message and data charges apply. Consult our Privacy Policy for additional information, including unsubscribe options. You also agree to our Privacy Policy, including TCPA Policy and Terms of Use.
Way to Go!
An agent will be in contact soon!