357 Grand Summit Drive
ActiveMonument, CO 80132
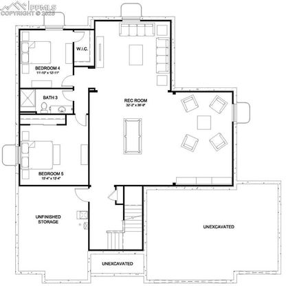
The Walter offers a distinctive take on ranch-style living, blending versatile spaces, modern finishes, and thoughtful design to create a home that feels both expansive and intimate. Set on a spacious homesite in Monument, this 5-bedroom, 3.5 bath home spans 3,879 square feet with a flexible layout perfect for entertaining or private retreats. From the moment you enter, The Walter's unique layout sets it apart. The open-concept design connects the kitchen, dining area, and great room while offering privacy with distinct living zones. The kitchen is a chef's dream, featuring an oversized island, ample storage, premium Samsung appliances, and direct access to the covered back patio for effortless indoor-outdoor living. The great room is filled with natural light from oversized windows and anchored by a central fireplace for a warm, welcoming feel. A private study offers a quiet space for a home office, library, or creative retreat. The primary suite is a retreat within the home, featuring a spa-inspired ensuite bath with dual vanities, a freestanding soaking tub framed between them, Kohler fixtures, and lighted mirrors with adjustable color settings. Two additional bedrooms on the main level share a Jack and Jill bath, providing comfort and privacy for family or guests. The finished basement expands the home's possibilities with a large rec room, two bedrooms, and a full bath-ideal for a guest suite or game room. Designed with the Grand Lake interior package, The Walter exudes timeless design and sophistication with white cabinetry, crisp quartz countertops, and soft, neutral flooring. High-end Samsung appliances, Kohler fixtures, and smart home features, including a video garage opener and smart doorbell, enhance modern convenience. The farmhouse-style exterior blends rustic charm with contemporary appeal. Located in Jackson Creek in Monument, this home offers mountain views, top-rated schools, and easy access to outdoor recreation. Ready for a January 2026 closing.

1/6
357 Grand Summit Drive
$788,190
- 5 bedrooms
- 4 baths
- 3879 sq ft
- MLS# : 6270815
- Built in 2025
Nearby schools
- Lewis-palmer Consolidated School District No. 38
Actual schools may vary. We recommend verifying with the local school district, the school assignment and enrollment process.
Map & directions
Mortgage rates & offers
Contact
FPO
Keller Williams Action Realty LLC
Copyright © 2026 Pikes Peak Association of REALTORS. All rights reserved. All information provided by the listing agent/broker is deemed reliable but is not guaranteed and should be independently verified.
Discover More Great Communities
Select additional listings for more information
By providing your name and contact information and clicking the I'm Interested! button, you consent and agree to receive marketing communications from NewHomeSource and the builder(s) selected above, including emails, calls or text messages using an automatic telephone dialing system or an artificial or prerecorded voice. Your agreement is not a condition to purchasing any property, goods or services, and you may call us instead of submitting the information online. You also acknowledge and agree that you can revoke your authorization at any time. Your consent herein also applies to any future registration on national or state Do-No-Call lists. For mobile phones, standard message and data charges apply. Consult our Privacy Policy for additional information, including unsubscribe options. You also agree to our Privacy Policy, including TCPA Policy and Terms of Use.
Way to Go!
An agent will be in contact soon!