7046 Fairview Falls Drive
ActiveChesnee, SC 29323
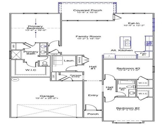
You will love the warm exterior colors of this home. Upon entering, you'll immediately notice the beautiful luxury vinyl plank flooring that extends throughout the main living areas. A small hallway leads to the spacious secondary bedrooms and a shared bathroom. Continuing down the foyer, you’ll find a large walk-in laundry room, as well as an open-concept family room that offers a lovely view of the covered back porch and the wooded backyard, which spans over half an acre. The chef in the family will appreciate the upgraded kitchen, featuring two pantries for ample storage, shaker-style cabinetry, granite countertops, and stainless-steel gas appliances. At the rear of the home, you’ll discover the primary bedroom, which also overlooks the backyard. This suite includes a large walk-in closet, dual sinks with quartz countertops, and a five-foot shower. Come see this beautiful home today in Fairview Falls!

1/2
7046 Fairview Falls Drive
$299,000
- 3 bedrooms
- 2 baths
- 1798 sq ft
- MLS# : 330656
- Built in 2025
Nearby schools
- Spartanburg 02 School District
Actual schools may vary. We recommend verifying with the local school district, the school assignment and enrollment process.
Map & directions
Mortgage rates & offers
Contact
FPO
MUNGO HOMES PROPERTIES LLC GREENVILLE
Copyright © 2025 Spartanburg Association of REALTORS, Inc.. All rights reserved. All information provided by the listing agent/broker is deemed reliable but is not guaranteed and should be independently verified.
Discover More Great Communities
Select additional listings for more information
By providing your name and contact information and clicking the I'm Interested! button, you consent and agree to receive marketing communications from NewHomeSource and the builder(s) selected above, including emails, calls or text messages using an automatic telephone dialing system or an artificial or prerecorded voice. Your agreement is not a condition to purchasing any property, goods or services, and you may call us instead of submitting the information online. You also acknowledge and agree that you can revoke your authorization at any time. Your consent herein also applies to any future registration on national or state Do-No-Call lists. For mobile phones, standard message and data charges apply. Consult our Privacy Policy for additional information, including unsubscribe options. You also agree to our Privacy Policy, including TCPA Policy and Terms of Use.
Way to Go!
An agent will be in contact soon!