2145 Hwy 9 S
ActiveDawsonville, GA 30534
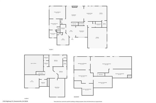
Welcome to 2145 Hwy 9 S! The beautiful mahogany front doors open to a spacious foyer featuring an office or additional bedroom and a full bath. Cooks will love the chef’s kitchen with a 48" double oven range and 8-burner gas cooktop, abundant workspace with custom hard-surface countertops, a large island, and cabinets galore. The kitchen also includes an apron-front sink with a chef accessory kit, a tile backsplash, a built-in wine cooler, and custom built-ins in the pantry and all closets throughout the home. The great room features soaring ceilings, a brick fireplace, and a full wall of windows that fill the space with natural light. Patio doors open to a large covered porch and custom deck overlooking the expansive private backyard. The main-level owner’s suite includes a soaking tub, large tile shower with frameless glass, and a private water closet. Upstairs offers a spacious loft overlooking the great room, two additional bedrooms, and a full bath. Along the hallway, you’ll find another full bath and a custom bookcase that opens to a HIDDEN BONUS ROOM—perfect for a theater, gym, or playroom. The full daylight basement provides endless possibilities, while the oversized, insulated garage door includes a smart-capable automatic opener. Spend weekends exploring nearby gems like Kaya and Etowah wineries, Amicalola Falls, and the scenic Dawson Forest trails. ** PLEASE READ: If using google maps use address 2211 GA-9, Dawsonville. If using Apple Maps use address 2211 SR-9, Dawsonville. Home has for sale banners and red for sale sign with agent info. 2145 will be the last home on the black top driveway.

1/20
2145 Hwy 9 S
$859,900
- 4 bedrooms
- 4 baths
- 3300 sq ft
- MLS# : 7683400
- Built in 2025
Nearby schools
- Dawson County Schools
- Lumpkin County Schools
Actual schools may vary. We recommend verifying with the local school district, the school assignment and enrollment process.
Map & directions
Mortgage rates & offers
Contact
FPO
Community Partners LLC dba Keller Williams Realty Community Partners
Copyright © 2025 First Multiple Listing Service, Inc.. All rights reserved. All information provided by the listing agent/broker is deemed reliable but is not guaranteed and should be independently verified.
Discover More Great Communities
Select additional listings for more information
By providing your name and contact information and clicking the I'm Interested! button, you consent and agree to receive marketing communications from NewHomeSource and the builder(s) selected above, including emails, calls or text messages using an automatic telephone dialing system or an artificial or prerecorded voice. Your agreement is not a condition to purchasing any property, goods or services, and you may call us instead of submitting the information online. You also acknowledge and agree that you can revoke your authorization at any time. Your consent herein also applies to any future registration on national or state Do-No-Call lists. For mobile phones, standard message and data charges apply. Consult our Privacy Policy for additional information, including unsubscribe options. You also agree to our Privacy Policy, including TCPA Policy and Terms of Use.
Way to Go!
An agent will be in contact soon!