0 Indian Road
ActiveGloucester, VA 23061
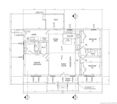
This "Roxbury" plan to be constructed is a ranch style home and has 3 bedrooms, 2 bathrooms and sits on a spacious 1.34 acre lot! Luxury vinyl plank flooring throughout. As you walk in, there is a family room with ceiling fan and recessed lighting that opens up to the kitchen and dining area. The kitchen features eat-up island, granite countertops, custom cabinetry, recessed lighting, and stainless steel GE/Whirlpool appliances including dishwasher, electric range, and microwave. Primary bedroom features ceiling fan and private bathroom with walk-in shower and sliding glass door, and double vanity. 2 additional bedrooms with ceiling fans and 2nd full bathroom with tub/shower and double vanity completes the living area. Additional features include rear 12'x10' deck, front porch, vinyl siding, brick foundation, concrete sidewalk, gutters, and dimensional roof. NO HOA! Conveniently located just a short drive to the Gloucester Courthouse area with lots of shopping and dining options. Builder is offering a 5 year home warranty through Residential Warranty Company on this home. Scheduled for completion March 2026.

1/5
0 Indian Road
$375,000
- 3 bedrooms
- 2 baths
- 1500 sq ft
- MLS# : 2503831
- Built in 2025
Nearby schools
- Gloucester County Public Schools
Actual schools may vary. We recommend verifying with the local school district, the school assignment and enrollment process.
Map & directions
Mortgage rates & offers
Contact
FPO
EXP REALTY LLC
Copyright © 2025 Williamsburg Area Association of Realtors MLS. All rights reserved. All information provided by the listing agent/broker is deemed reliable but is not guaranteed and should be independently verified.
Discover More Great Communities
Select additional listings for more information
By providing your name and contact information and clicking the I'm Interested! button, you consent and agree to receive marketing communications from NewHomeSource and the builder(s) selected above, including emails, calls or text messages using an automatic telephone dialing system or an artificial or prerecorded voice. Your agreement is not a condition to purchasing any property, goods or services, and you may call us instead of submitting the information online. You also acknowledge and agree that you can revoke your authorization at any time. Your consent herein also applies to any future registration on national or state Do-No-Call lists. For mobile phones, standard message and data charges apply. Consult our Privacy Policy for additional information, including unsubscribe options. You also agree to our Privacy Policy, including TCPA Policy and Terms of Use.
Way to Go!
An agent will be in contact soon!