220 Windswept Lane
ActiveBeaufort, NC 28516
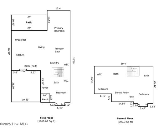
Experience 220 Windswept Lane, a brand new home built by American Homesmith in The Cove at Beaufort Club, just minutes from historic Downtown Beaufort. After you pass the first of four bedrooms, which features a walk-in closet and ensuite, the Seahawk floorplan welcomes you into the open-concept great room with 9-foot ceilings that enhance the bright, elevated atmosphere. The great room is anchored by a cozy fireplace with shiplap accents, flowing naturally into the dining area and gourmet kitchen. With quartz countertops, a center island, and a walk-in pantry, the kitchen is perfect for casual dining or entertaining. Natural light filters through sliding doors leading to the screened-in porch, an ideal spot to unwind and enjoy tranquil backyard views. Conveniently off the kitchen, you'll find a drop zone for your keys, bags, coats, and shoes for staying organized when entering the home through the two-car garage. The first-floor primary suite is a serene retreat with an elegant tray ceiling and a spa-like ensuite with dual sink vanities, a water closet, and a luxurious walk-in shower. The expansive walk-in closet enhances the functionality of the home with direct access to the double-entry laundry room, also accessible from the hallway. Upstairs, a third bedroom features a private ensuite, while the fourth bedroom offers a walk-in closet and access to an additional full bath. The bonus room, ideal for a home office, playroom, or hobby space, completes the second floor. Additional features include 9+ foot ceilings throughout, a tankless water heater for efficiency, and an irrigation system to keep the lawn lush year-round. With thoughtful design and luxurious finishes, 220 Windswept Lane offers a seamless blend of comfort and style in a desirable, resort-style community. Reach out to schedule your private showing at 220 Windswept Lane today!

1/20
220 Windswept Lane
$594,900
- 4 bedrooms
- 4 baths
- 2578 sq ft
- MLS# : 100538853
- Built in 2025
Nearby schools
- Carteret County Public Schools
Actual schools may vary. We recommend verifying with the local school district, the school assignment and enrollment process.
Map & directions
Mortgage rates & offers
Contact
FPO
Keller Williams Realty
Copyright © 2025 Hive MLS / Topsail Island Association of Realtors. All rights reserved. All information provided by the listing agent/broker is deemed reliable but is not guaranteed and should be independently verified.
Discover More Great Communities
Select additional listings for more information
By providing your name and contact information and clicking the I'm Interested! button, you consent and agree to receive marketing communications from NewHomeSource and the builder(s) selected above, including emails, calls or text messages using an automatic telephone dialing system or an artificial or prerecorded voice. Your agreement is not a condition to purchasing any property, goods or services, and you may call us instead of submitting the information online. You also acknowledge and agree that you can revoke your authorization at any time. Your consent herein also applies to any future registration on national or state Do-No-Call lists. For mobile phones, standard message and data charges apply. Consult our Privacy Policy for additional information, including unsubscribe options. You also agree to our Privacy Policy, including TCPA Policy and Terms of Use.
Way to Go!
An agent will be in contact soon!