36894 HIDDEN VIEW CIRCLE
ActiveDade City, FL 33523
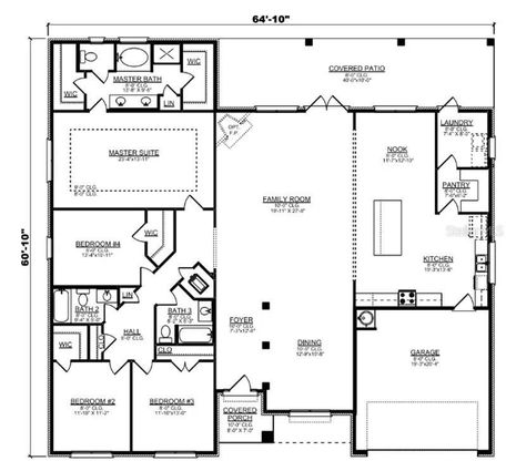
The 3000-floor plan by Adams Homes is a beautiful blend of style, space, and everyday comfort. This expansive single-story home offers approximately 3,000 square feet of living space, giving homeowners room to relax, entertain, and grow. With 4 bedrooms and 3 baths, it’s an ideal fit for families or anyone who wants extra space for guests, hobbies, or a home office. The open-concept design creates a seamless flow between the main living areas, enhanced by ceramic wood-style tile flooring throughout the main areas, offering durability, warmth, and timeless appeal. At the heart of the home is a large kitchen, thoughtfully designed with ample countertop space, quality cabinetry, a spacious center island, a walk-in pantry, and soft-close drawers for a refined and functional cooking experience. The kitchen opens to the oversized family room, where large windows bring in abundant natural light, creating a bright and airy setting for relaxing or entertaining. From here, the living space extends to the outdoor area, offering the perfect spot for dining or simply enjoying the peaceful surroundings. The owner’s suite is a true retreat, featuring a spacious bedroom with tray ceilings, room for a sitting area, and a luxurious bathroom. Enjoy the spa-inspired design with dual vanities, a soaking tub, a walk-in shower, and two large walk-in closets. The additional three bedrooms are thoughtfully positioned toward the front of the home, ensuring comfort and privacy for every member of the household. Practicality meets elegance with a 3-car side-entry garage, offering ample parking and storage while enhancing the home’s curb appeal. Located in Dade City, this community captures the best of peaceful Florida living. Known for its rolling hills, wide-open spaces, charming downtown, and welcoming small-town atmosphere, Dade City offers a refreshing escape from the busier suburbs while still providing convenient access to shopping, dining, medical facilities, and major highways. Residents enjoy local favorites such as boutiques, antique shops, seasonal festivals, parks, and farm-to-table markets. With its blend of natural beauty and historic character, Dade City is one of Pasco County’s most desirable hidden gems. Set on 1-acre+ homesites, this community offers space, serenity, and privacy without the extra costs. Best of all, there is NO CDD and a low HOA, providing homeowners with long-term value and affordability. Adams Homes is dedicated to building energy-efficient homes, and the 3000 floorplan proudly includes features that support comfort, efficiency, and peace of mind. Experience the perfect balance of elegance, comfort, and country-charm living with the Adams Homes 3000 floorplan in beautiful Dade City.

1/2
36894 HIDDEN VIEW CIRCLE
$610,000
- 4 bedrooms
- 3 baths
- 3000 sq ft
- MLS# : TB8452188
- Built in 2025
Nearby schools
- Pasco County School District
Actual schools may vary. We recommend verifying with the local school district, the school assignment and enrollment process.
Map & directions
Mortgage rates & offers
Contact
FPO
Adams Homes
Copyright © 2026 Stellar MLS. All rights reserved. All information provided by the listing agent/broker is deemed reliable but is not guaranteed and should be independently verified.
Discover More Great Communities
Select additional listings for more information
By providing your name and contact information and clicking the I'm Interested! button, you consent and agree to receive marketing communications from NewHomeSource and the builder(s) selected above, including emails, calls or text messages using an automatic telephone dialing system or an artificial or prerecorded voice. Your agreement is not a condition to purchasing any property, goods or services, and you may call us instead of submitting the information online. You also acknowledge and agree that you can revoke your authorization at any time. Your consent herein also applies to any future registration on national or state Do-No-Call lists. For mobile phones, standard message and data charges apply. Consult our Privacy Policy for additional information, including unsubscribe options. You also agree to our Privacy Policy, including TCPA Policy and Terms of Use.
Way to Go!
An agent will be in contact soon!