1248 Dockyard Lane
ActiveInman, SC 29349
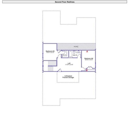
This Hunter is a beautiful four-bedroom, three and a half bathroom, two-car garage home with an open plan featuring luxury vinyl flooring on the main level living areas and upgraded carpet in the bedrooms. This space is perfect for entertaining friends and family or hosting those special holidays or get-togethers! The kitchen features quartz countertops, and gourmet gas stainless cooktop. There is a beautiful fireplace in the living room that can be seen from the eat-in and kitchen. There are two primary suite on the main level features a walk-in closet, and walk-in shower. Don’t wait until the best homesites are gone, visit the Cottages at Lake Emory today!

1/3
1248 Dockyard Lane
$420,000
- 4 bedrooms
- 3 baths
- 2595 sq ft
- MLS# : 331392
- Built in 2026
Nearby schools
- Spartanburg 01 School District
- Spartanburg 02 School District
Actual schools may vary. We recommend verifying with the local school district, the school assignment and enrollment process.
Map & directions
Mortgage rates & offers
Contact
FPO
MUNGO HOMES PROPERTIES LLC GREENVILLE
Copyright © 2025 Spartanburg Association of REALTORS, Inc.. All rights reserved. All information provided by the listing agent/broker is deemed reliable but is not guaranteed and should be independently verified.
Discover More Great Communities
Select additional listings for more information
By providing your name and contact information and clicking the I'm Interested! button, you consent and agree to receive marketing communications from NewHomeSource and the builder(s) selected above, including emails, calls or text messages using an automatic telephone dialing system or an artificial or prerecorded voice. Your agreement is not a condition to purchasing any property, goods or services, and you may call us instead of submitting the information online. You also acknowledge and agree that you can revoke your authorization at any time. Your consent herein also applies to any future registration on national or state Do-No-Call lists. For mobile phones, standard message and data charges apply. Consult our Privacy Policy for additional information, including unsubscribe options. You also agree to our Privacy Policy, including TCPA Policy and Terms of Use.
Way to Go!
An agent will be in contact soon!