975 High Road
ActiveBerlin, CT 06037
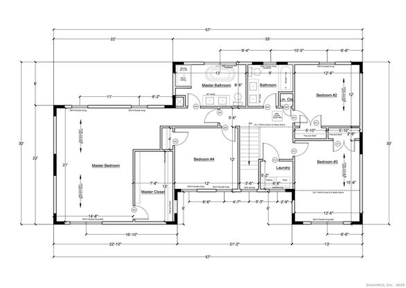
Under construction. Stunning country colonial home with front porch, located on a .42 acre lot in Kensington, quiet area, country setting with pastoral farm views from your front porch, backing up to Town Conservation land that won't be built on. 2,320 sq. ft, open floor plan, first floor 9' ceilings. kitchen featuring; custom cabinets, quartz counter tops, large island, full Samsung SS appliance package, chimney hood, in island microwave. Front to back family room with gas fireplace and granite surround, flex room; dining room/den/study, Four large bedrooms. 2.5 bathrooms. Hardwood flooring throughout the first and second floors. Master bedroom suite featuring; large bedroom, bathroom with soaking tub and a huge WIC. Second floor laundry room. Walk-out basement with 9' ceiling and windows with options to easily finish. Front porch and rear deck. Quality trim throughout; crown molding, etc. Energy efficient. Back yard with room for recreation. Quiet country road. Close to Timberlin Golf Course, Ragged Mtn Preserve, Chamberlain Hwy, Rt. 9, 72, 691 and 5, shopping, restaurants, train station, and more! Note, these floor plans and photos are from builders other completed homes; additional plans & finishes available for your custom home.

1/42
975 High Road
$699,999
- 4 bedrooms
- 2 baths
- 2320 sq ft
- MLS# : 24141996
- Built in 2026
Nearby schools
- Berlin School District
Actual schools may vary. We recommend verifying with the local school district, the school assignment and enrollment process.
Map & directions
Mortgage rates & offers
Contact
FPO
Amodio & Co, LLC
Copyright © 2026 SmartMLS, Inc.. All rights reserved. All information provided by the listing agent/broker is deemed reliable but is not guaranteed and should be independently verified.
Discover More Great Communities
Select additional listings for more information
By providing your name and contact information and clicking the I'm Interested! button, you consent and agree to receive marketing communications from NewHomeSource and the builder(s) selected above, including emails, calls or text messages using an automatic telephone dialing system or an artificial or prerecorded voice. Your agreement is not a condition to purchasing any property, goods or services, and you may call us instead of submitting the information online. You also acknowledge and agree that you can revoke your authorization at any time. Your consent herein also applies to any future registration on national or state Do-No-Call lists. For mobile phones, standard message and data charges apply. Consult our Privacy Policy for additional information, including unsubscribe options. You also agree to our Privacy Policy, including TCPA Policy and Terms of Use.
Way to Go!
An agent will be in contact soon!