152 Fairway Cottage Lane
ActiveHighlands, NC 28741
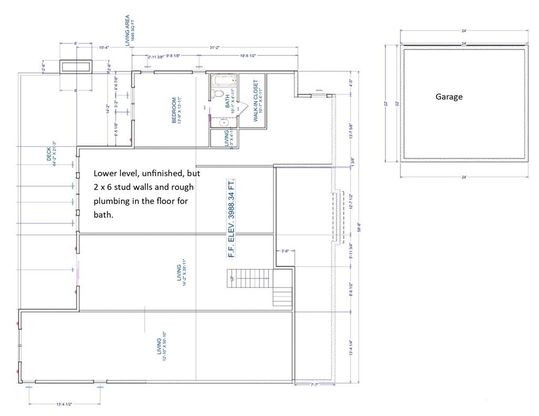
Charming Craftsman Home in Cullasaja Club with Main-Level Living. Located inside the prestigious gated Cullasaja Club, this well-designed craftsman-style home offers effortless main-level living and a rare opportunity to expand with an unfinished plumbed basement. Surrounded by mature trees and a full golf view. Situated on the 10th Fairway of Cullasaja Club. This home reflects the relaxed elegance and outdoor lifestyle that define the Plateau. The main level includes 3 bedrooms, including a welcoming primary suite, along with spacious living areas highlighted by warm finishes and classic details. Large windows open deck and screened porch, bring in natural light and views, creating a peaceful retreat. The unfinished basement offers excellent potential—already plumbed for an additional bedroom and full bath, giving you flexibility for future expansion. Living in Cullasaja Club provides an exceptional lifestyle with access to world-class amenities (membership by invitation), featuring an Arnold Palmer golf course, clubhouse dining, tennis, pickleball, fitness center, a heated pool, and warm social environment. Just minutes to shopping, dining, and cultural offerings of Highlands, NC

1/8
152 Fairway Cottage Lane
$2,850,000
- 4 bedrooms
- 3 baths
- MLS# : 26042867
- Built in 2026
Nearby schools
- Macon County Schools
Actual schools may vary. We recommend verifying with the local school district, the school assignment and enrollment process.
Map & directions
Mortgage rates & offers
Contact
FPO
Mountain Life Properties
Copyright © 2025 Carolina Smokies Association of Realtors. All rights reserved. All information provided by the listing agent/broker is deemed reliable but is not guaranteed and should be independently verified.
Discover More Great Communities
Select additional listings for more information
By providing your name and contact information and clicking the I'm Interested! button, you consent and agree to receive marketing communications from NewHomeSource and the builder(s) selected above, including emails, calls or text messages using an automatic telephone dialing system or an artificial or prerecorded voice. Your agreement is not a condition to purchasing any property, goods or services, and you may call us instead of submitting the information online. You also acknowledge and agree that you can revoke your authorization at any time. Your consent herein also applies to any future registration on national or state Do-No-Call lists. For mobile phones, standard message and data charges apply. Consult our Privacy Policy for additional information, including unsubscribe options. You also agree to our Privacy Policy, including TCPA Policy and Terms of Use.
Way to Go!
An agent will be in contact soon!