2618 Lone Pine Drive
ActiveFayetteville, NC 28306
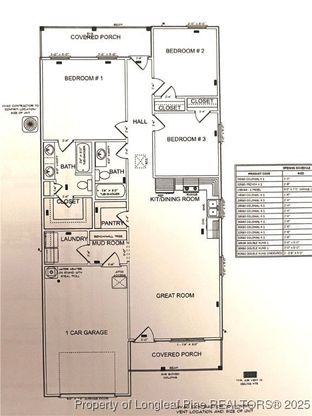
New Construction for 239,900.00! Yes, you are reading it correctly. 3 bedrooms 2 baths located right off Owen Drive and a straight drive to base or I-295. Open layout that is perfect for entertaining with a spacious kitchen that flows seamlessly into the family room. Low maintenance LVP flooring. The main bedroom has plenty of space and the adjoining bathroom comes with dual vanity sinks and a spacious walk-in closet. Construction set to finish late April of 2026. Do not wait. There is very few new construction homes priced this well. If you're looking for a new, quality built, affordable home, put this one on your list.

1/2
2618 Lone Pine Drive
$239,900
- 3 bedrooms
- 2 baths
- 1219 sq ft
- MLS# : 754840
- Built in 2026
Nearby schools
- Cumberland County Schools
Actual schools may vary. We recommend verifying with the local school district, the school assignment and enrollment process.
Map & directions
Mortgage rates & offers
Contact
FPO
PRUDENTIAL ALL AMERICAN HOMES INC.
Copyright © 2026 Longleaf Pine Realtors. All rights reserved. All information provided by the listing agent/broker is deemed reliable but is not guaranteed and should be independently verified.
Discover More Great Communities
Select additional listings for more information
By providing your name and contact information and clicking the I'm Interested! button, you consent and agree to receive marketing communications from NewHomeSource and the builder(s) selected above, including emails, calls or text messages using an automatic telephone dialing system or an artificial or prerecorded voice. Your agreement is not a condition to purchasing any property, goods or services, and you may call us instead of submitting the information online. You also acknowledge and agree that you can revoke your authorization at any time. Your consent herein also applies to any future registration on national or state Do-No-Call lists. For mobile phones, standard message and data charges apply. Consult our Privacy Policy for additional information, including unsubscribe options. You also agree to our Privacy Policy, including TCPA Policy and Terms of Use.
Way to Go!
An agent will be in contact soon!