10A FORBES DR
ActiveCharlottesville, VA 22911
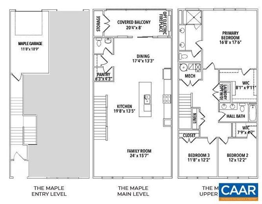
The Maple offers 2,472 square feet of flexible, low-maintenance living across two levels in Brookhill Square, a brand-new section of the Brookhill neighborhood in Charlottesville. This unique condo layout lives more like a single-family home, with the main level located on the third floor of the building. Inside, you’ll find an open-concept design featuring a large family room, spacious kitchen with a large island and walk-in pantry, and a dining area that opens to a covered porch. A powder room and coat closet add everyday convenience, and some homes offer an optional flex room to expand the living space. The fourth floor includes a generous primary suite with a private bath and walk-in closet, two additional bedrooms, a full hall bath, and a centrally located laundry area. Brookhill Square combines new construction with a low-maintenance lifestyle, all in a thoughtfully planned community just off Route 29 North, close to green spaces, walking trails, shopping, dining, and commuter routes. This is a brand-new floor plan, and photos are not yet available. Digital renderings are provided for inspirational purposes only and may not reflect final finishes or layout. Features, specifications, and community details may vary. Fall '26.

1/9
10A FORBES DR
$409,900
- 3 bedrooms
- 2 baths
- 2472 sq ft
- MLS# : 671978
- Built in 2026
Nearby schools
- Albemarle County Public Schools
Actual schools may vary. We recommend verifying with the local school district, the school assignment and enrollment process.
Map & directions
Mortgage rates & offers
Contact
FPO
Nest Realty
Copyright © 2026 Charlottesville Area Association of REALTORS®. All rights reserved. All information provided by the listing agent/broker is deemed reliable but is not guaranteed and should be independently verified.
Discover More Great Communities
Select additional listings for more information
By providing your name and contact information and clicking the I'm Interested! button, you consent and agree to receive marketing communications from NewHomeSource and the builder(s) selected above, including emails, calls or text messages using an automatic telephone dialing system or an artificial or prerecorded voice. Your agreement is not a condition to purchasing any property, goods or services, and you may call us instead of submitting the information online. You also acknowledge and agree that you can revoke your authorization at any time. Your consent herein also applies to any future registration on national or state Do-No-Call lists. For mobile phones, standard message and data charges apply. Consult our Privacy Policy for additional information, including unsubscribe options. You also agree to our Privacy Policy, including TCPA Policy and Terms of Use.
Way to Go!
An agent will be in contact soon!