1648 Savannah Mills Drive
ActiveSpartanburg, SC 29303
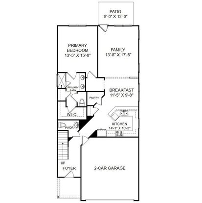
Enjoy the benefits of a peaceful neighborhood while staying close to shopping, dining, and entertainment in this stunning two-story home! The Summerton floorplan offers exceptional flexibility with dual primary bedrooms—one on the main level and another upstairs. The welcoming foyer opens to an open-concept layout designed for entertaining, featuring a spacious family room and a gourmet kitchen with expansive cabinetry, glistening countertops, and easy access to the garage for convenient grocery unloading. The main-level primary suite includes a private bath with a walk-in shower and an oversized closet for relaxed living. Upstairs, you’ll find three additional bedrooms, each with a walk-in closet, plus a flex space and storage room. One bedroom even has its own private bath, making it a perfect second primary suite! The large loft offers endless possibilities such as movie nights with the family, a home office, play area, or gym. Outside, enjoy community amenities including a fire pit, walking trail, and playground. Tour our model home today and experience the Summerton!

1/3
1648 Savannah Mills Drive
$300,020
- 4 bedrooms
- 3 baths
- 2386 sq ft
- MLS# : 332051
- Built in 2025
Nearby schools
- Spartanburg 06 School District
- Spartanburg 07 School District
Actual schools may vary. We recommend verifying with the local school district, the school assignment and enrollment process.
Map & directions
Mortgage rates & offers
Contact
FPO
SM South Carolina Brokerage LLC
Copyright © 2025 Spartanburg Association of REALTORS, Inc.. All rights reserved. All information provided by the listing agent/broker is deemed reliable but is not guaranteed and should be independently verified.
Discover More Great Communities
Select additional listings for more information
By providing your name and contact information and clicking the I'm Interested! button, you consent and agree to receive marketing communications from NewHomeSource and the builder(s) selected above, including emails, calls or text messages using an automatic telephone dialing system or an artificial or prerecorded voice. Your agreement is not a condition to purchasing any property, goods or services, and you may call us instead of submitting the information online. You also acknowledge and agree that you can revoke your authorization at any time. Your consent herein also applies to any future registration on national or state Do-No-Call lists. For mobile phones, standard message and data charges apply. Consult our Privacy Policy for additional information, including unsubscribe options. You also agree to our Privacy Policy, including TCPA Policy and Terms of Use.
Way to Go!
An agent will be in contact soon!