1005 Inwood Court Lane
ActiveCelina, TX 75009
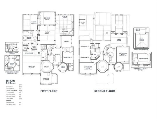
New Construction with gorgeous white brick on a greenbelt lot backing to trees in the highly sought after master planned community of Light Farms will not last long! Dramatic 2 story entry and staircase to include a second platform landing to the raised study. Open railing overlook into the family with a separate opening to the kitchen showcasing a gambrel ceiling from the cooktop to the casual dining wall of windows. Your gourmet kitchen comes with Calcutta Izaro Quartz, KitchenAid appliances and extensive custom cabinetry to the ceiling. The freestanding tub is focal in the spa inspired master bath with separate vanities, his and her walk-in closets, large linen closet and private shower. This is a brand-new design with showstopping 2 story windows along the rear elevation on a one-of-a-kind greenbelt treed lot. You are sure to fall in love with this open, livable home design on this 82’ wide site.

1/2
1005 Inwood Court Lane
$1,399,900
- 5 bedrooms
- 5 baths
- 4814 sq ft
- MLS# : 21141616
- Built in 2025
Nearby schools
- Celina Independent School District
- Prosper Independent School District
Actual schools may vary. We recommend verifying with the local school district, the school assignment and enrollment process.
Map & directions
Mortgage rates & offers
Contact
FPO
Hunter Dehn Group
Copyright © 2026 North Texas Real Estate Information Systems, Inc.. All rights reserved. All information provided by the listing agent/broker is deemed reliable but is not guaranteed and should be independently verified.
Discover More Great Communities
Select additional listings for more information
By providing your name and contact information and clicking the I'm Interested! button, you consent and agree to receive marketing communications from NewHomeSource and the builder(s) selected above, including emails, calls or text messages using an automatic telephone dialing system or an artificial or prerecorded voice. Your agreement is not a condition to purchasing any property, goods or services, and you may call us instead of submitting the information online. You also acknowledge and agree that you can revoke your authorization at any time. Your consent herein also applies to any future registration on national or state Do-No-Call lists. For mobile phones, standard message and data charges apply. Consult our Privacy Policy for additional information, including unsubscribe options. You also agree to our Privacy Policy, including TCPA Policy and Terms of Use.
Way to Go!
An agent will be in contact soon!