5107 FIREBUSH DRIVE
ActiveApopka, FL 32712
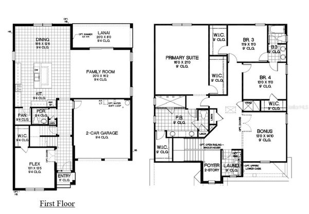
One or more photo(s) has been virtually staged. The Biscayne floorplan offers a spacious two-story design that perfectly balances functionality and flexibility, ideal for growing families. With four bedrooms and two and a half bathrooms, this layout provides ample space for everyday living and special moments alike. On the first floor, you'll find a flex room that can serve as a home office, gym, or an optional guest bedroom, depending on your needs. The open-concept design flows seamlessly from the dining room into the expansive great room, making it perfect for entertaining. A covered patio extends your living space outdoors, ideal for relaxing or hosting gatherings. The second floor offers all four bedrooms, including a primary suite with a walk-in closet and private bath, ensuring a peaceful retreat. A bonus room on this level provides additional versatility, perfect for a playroom or media space. Laundry is conveniently located upstairs to make daily chores easier. This floorplan is designed to accommodate diverse lifestyles, giving you the perfect combination of open spaces and private retreats. Crossroads at Kelly Park, a premier residential community located in the quaint city of Apopka, Florida. Community amenities include pools, cabana, playgrounds, and dog park. Convenient location with everyday services at your fingertips, and easy commute times anywhere around Central Florida.

1/2
5107 FIREBUSH DRIVE
$550,990
- 4 bedrooms
- 3 baths
- 2730 sq ft
- MLS# : G5106615
- Built in 2025
Nearby schools
- Orange County School District
Actual schools may vary. We recommend verifying with the local school district, the school assignment and enrollment process.
Map & directions
Mortgage rates & offers
Contact
FPO
Olympus Executive Realty INC.
Copyright © 2026 Stellar MLS. All rights reserved. All information provided by the listing agent/broker is deemed reliable but is not guaranteed and should be independently verified.
Discover More Great Communities
Select additional listings for more information
By providing your name and contact information and clicking the I'm Interested! button, you consent and agree to receive marketing communications from NewHomeSource and the builder(s) selected above, including emails, calls or text messages using an automatic telephone dialing system or an artificial or prerecorded voice. Your agreement is not a condition to purchasing any property, goods or services, and you may call us instead of submitting the information online. You also acknowledge and agree that you can revoke your authorization at any time. Your consent herein also applies to any future registration on national or state Do-No-Call lists. For mobile phones, standard message and data charges apply. Consult our Privacy Policy for additional information, including unsubscribe options. You also agree to our Privacy Policy, including TCPA Policy and Terms of Use.
Way to Go!
An agent will be in contact soon!