1002 S 9th Street
ActiveMerkel, TX 79536
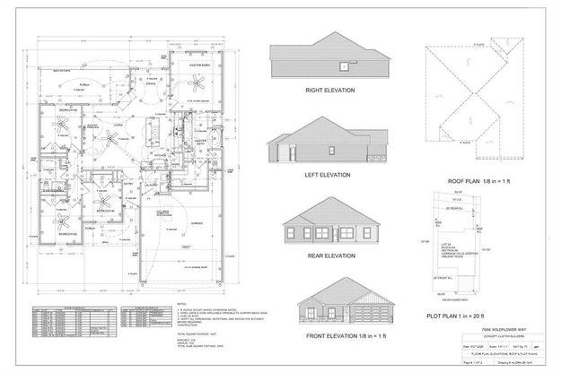
New construction proposed by Red Oak Custom Builders starting soon in Merkel! Wonderful open floorplan with 4 Bedrooms & 2 Bathrooms built on a 9ft plate. Builder's plans for the home - Kitchen to have painted cabinetry, granite on counters, gorgeous walnut butcher block on island, & SS appliances (range, microwave, dishwasher). Living room will have an electric FP. The primary bedroom ensuite has a tub, separate tiled shower, and 2-sink vanity with granite counters. LVP main living areas, carpet in bedrooms. Foam insulation. Class 4 metal roof. Covered porches, front & back. Metal privacy fence and a 2-car garage. Landscaping to include sod in front & back. Wise camera system with 2 cameras & ring doorbell. Builder warranty. This home is just starting so builder's finish out plans ARE SUBJECT TO CHANGE and-or buyer has the opportunity to choose finishes and make some changes at this point, within builder's allowances. The barndos on the corner of S. 6th and Rose St and the one at 822 Rose were also built by Red Oak Custom Builders. Photos from those homes are just representative of the builder's style. All measurements are approximate. Lot size is also approximate since it's a larger lot that has been subdivided.

1/1
1002 S 9th Street
$320,000
- 4 bedrooms
- 2 baths
- 1647 sq ft
- MLS# : 21153155
- Built in 2026
Nearby schools
- Merkel Independent School District
Actual schools may vary. We recommend verifying with the local school district, the school assignment and enrollment process.
Map & directions
Mortgage rates & offers
Contact
FPO
RE/MAX Big Country
Copyright © 2026 North Texas Real Estate Information Systems, Inc.. All rights reserved. All information provided by the listing agent/broker is deemed reliable but is not guaranteed and should be independently verified.
Discover More Great Communities
Select additional listings for more information
By providing your name and contact information and clicking the I'm Interested! button, you consent and agree to receive marketing communications from NewHomeSource and the builder(s) selected above, including emails, calls or text messages using an automatic telephone dialing system or an artificial or prerecorded voice. Your agreement is not a condition to purchasing any property, goods or services, and you may call us instead of submitting the information online. You also acknowledge and agree that you can revoke your authorization at any time. Your consent herein also applies to any future registration on national or state Do-No-Call lists. For mobile phones, standard message and data charges apply. Consult our Privacy Policy for additional information, including unsubscribe options. You also agree to our Privacy Policy, including TCPA Policy and Terms of Use.
Way to Go!
An agent will be in contact soon!