4244 TRICKLING CREEK Lane
ActiveFort Worth, TX 76036
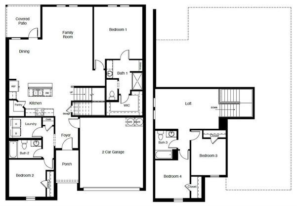
Beautiful new D.R. Horton home in the Sunnycreek community located in Fort Worth and Crowley ISD! Complete and Move-in Ready! The two-story Midland Floorplan, Elevation B, offers 4 bedrooms, 3 bathrooms, a versatile loft, and a 2-car garage, thoughtfully designed to provide flexible living space for modern lifestyles. The main level features an open-concept layout where the family room, dining area, and contemporary kitchen connect seamlessly, creating an inviting setting for everyday living and entertaining. The kitchen is well-appointed with quartz countertops, 36” painted cabinets, stainless steel appliances, an electric range, stainless steel sink, center island, and a walk-in pantry for convenient storage. The private primary suite is located on the first floor and includes an ensuite bath with dual quartz vanities, a 5-foot oversized shower, and a walk-in closet located just off the bathroom. A secondary bedroom and full bathroom on the main level provide added flexibility for guests or a home office. Upstairs, a spacious loft offers a second living area, along with two additional bedrooms and a full bathroom featuring a quartz vanity top. Luxury vinyl plank flooring enhances the main living areas and wet zones for durability and easy maintenance. Built with energy-efficient construction and equipped with America’s Smart Home Technology. Exterior highlights include a landscape package, full sprinkler system with rain sensor, privacy fencing, and more. Residents of Sunnycreek enjoy mobility-friendly trails and two dog parks, all conveniently located minutes from I-35, Chisholm Trail Parkway, Chisholm Trail Park, and a variety of shopping and dining options.

1/20
4244 TRICKLING CREEK Lane
$367,065
- 4 bedrooms
- 3 baths
- 2209 sq ft
- MLS# : 21152667
- Built in 2025
Nearby schools
- Crowley Independent School District
Actual schools may vary. We recommend verifying with the local school district, the school assignment and enrollment process.
Map & directions
Mortgage rates & offers
Contact
FPO
Century 21 Mike Bowman, Inc.
Copyright © 2026 North Texas Real Estate Information Systems, Inc.. All rights reserved. All information provided by the listing agent/broker is deemed reliable but is not guaranteed and should be independently verified.
Discover More Great Communities
Select additional listings for more information
By providing your name and contact information and clicking the I'm Interested! button, you consent and agree to receive marketing communications from NewHomeSource and the builder(s) selected above, including emails, calls or text messages using an automatic telephone dialing system or an artificial or prerecorded voice. Your agreement is not a condition to purchasing any property, goods or services, and you may call us instead of submitting the information online. You also acknowledge and agree that you can revoke your authorization at any time. Your consent herein also applies to any future registration on national or state Do-No-Call lists. For mobile phones, standard message and data charges apply. Consult our Privacy Policy for additional information, including unsubscribe options. You also agree to our Privacy Policy, including TCPA Policy and Terms of Use.
Way to Go!
An agent will be in contact soon!