210 N Yadkin Avenue
ActiveSpencer, NC 28159
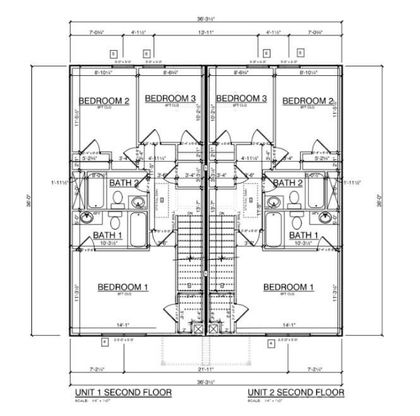
Seller offering up to $6,600 in closing costs. **If buyer uses preferred lender, seller offering up to $13,200 in closing costs with acceptable offer. Well-designed income-producing duplex featuring two spacious, mirror-image units with thoughtful floor plans ideal for long-term tenants or owner-occupants. Each unit offers a functional two-story layout with private entrances, open living areas, and bedroom separation for added privacy. First Floor: - Open-concept family room and dining area with great natural light - Modern kitchen with island, pantry, and ample cabinet space - Powder room (half bath) conveniently located on main level - Laundry area centrally located for efficient plumbing design - Access to optional rear patio, perfect for outdoor living Second Floor: - Three generously sized bedrooms - Two full bathrooms, including a primary bath layout - Well-planned hallway and closet space for maximum functionality Investment Appeal: This duplex is perfectly suited for investors seeking a low-maintenance, high-demand rental property or buyers looking to live in one unit and rent the other. Functional layouts, multiple bathrooms, and generous bedroom counts make each unit highly attractive to tenants.

1/3
210 N Yadkin Avenue
$440,000
- 6 bedrooms
- 3 baths
- MLS# : 4336371
- Built in 2026
Nearby schools
- Rowan-salisbury Schools
Actual schools may vary. We recommend verifying with the local school district, the school assignment and enrollment process.
Map & directions
Mortgage rates & offers
Contact
FPO
EXP REALTY LLC
Copyright © 2026 Canopy MLS. All rights reserved. All information provided by the listing agent/broker is deemed reliable but is not guaranteed and should be independently verified.
Discover More Great Communities
Select additional listings for more information
By providing your name and contact information and clicking the I'm Interested! button, you consent and agree to receive marketing communications from NewHomeSource and the builder(s) selected above, including emails, calls or text messages using an automatic telephone dialing system or an artificial or prerecorded voice. Your agreement is not a condition to purchasing any property, goods or services, and you may call us instead of submitting the information online. You also acknowledge and agree that you can revoke your authorization at any time. Your consent herein also applies to any future registration on national or state Do-No-Call lists. For mobile phones, standard message and data charges apply. Consult our Privacy Policy for additional information, including unsubscribe options. You also agree to our Privacy Policy, including TCPA Policy and Terms of Use.
Way to Go!
An agent will be in contact soon!