743 Grateful Dr.
ActiveLittle River, SC 29566
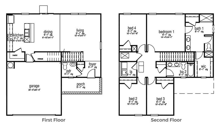
Welcome to Sandrigde Park, located in Little River. The area is known for their deep-sea fishing charters, fresh seafood, and their famous Blue Crab Festival. This area is only 20 miles from the hustle and bustle of Myrtle Beach. Residents are drawn to Little River for its more relaxed, laid-back feel. This quaint fishing village is close to a few major roadways that can quickly take you to larger cities and within a short drive of Longs, Cherry Grove Beach and North Myrtle Beach. The Arden floor plan features an open flow between the kitchen, dining and living area that is great for entertaining. The well-designed floorplan offers the open concept and a space that can be decorated and lived-in in many ways. The kitchen comes complete with a center island, a tile backsplash, granite countertops, a corner walk in pantry, 36" cabinets and stainless steel appliances including a refrigerator! Beautiful luxury vinyl plank flooring throughout the main living areas! A second floor owner's suite is large with a spacious walk in closet and a bathroom that features double sinks, 5' walk-in shower, garden tub and plenty of space. Three secondary bedrooms and another full bathroom complete the upstairs area. Enjoy the coastal breezes on the covered back porch. This is America's Smart Home! Each of our homes comes with an industry leading smart home technology package that will allow you to control the thermostat, front door light and lock, and video doorbell from your smartphone. *Photos are of a similar Arden home. (Home and community information, including pricing, included features, terms, availability and amenities, are subject to change prior to sale at any time without notice or obligation. Square footages are approximate. Pictures, photographs, colors, features, and sizes are for illustration purposes only and will vary from the homes as built. Equal housing opportunity builder.)

1/2
743 Grateful Dr.
$352,415
- 4 bedrooms
- 2 baths
- 1884 sq ft
- MLS# : 2601770
- Built in 2026
Nearby schools
- Horry County Schools
Actual schools may vary. We recommend verifying with the local school district, the school assignment and enrollment process.
Map & directions
Mortgage rates & offers
Contact
FPO
D R Horton
Copyright © 2026 Coastal Carolina Association of REALTORS®. All rights reserved. All information provided by the listing agent/broker is deemed reliable but is not guaranteed and should be independently verified.
Discover More Great Communities
Select additional listings for more information
By providing your name and contact information and clicking the I'm Interested! button, you consent and agree to receive marketing communications from NewHomeSource and the builder(s) selected above, including emails, calls or text messages using an automatic telephone dialing system or an artificial or prerecorded voice. Your agreement is not a condition to purchasing any property, goods or services, and you may call us instead of submitting the information online. You also acknowledge and agree that you can revoke your authorization at any time. Your consent herein also applies to any future registration on national or state Do-No-Call lists. For mobile phones, standard message and data charges apply. Consult our Privacy Policy for additional information, including unsubscribe options. You also agree to our Privacy Policy, including TCPA Policy and Terms of Use.
Way to Go!
An agent will be in contact soon!