1960 Salisbury Road
ActiveSouthport, NC 28461
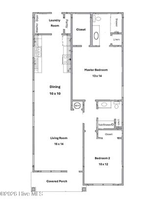
Now Under Construction, this home is cute as a button. Covered front porch invites you into this roomy open floor plan with large living area, separate dining room and kitchen with island with additional storage/pantry in laundry room. This home flows nicely and offers the perfect space for entertaining. Whether you are a first-time home buyer or just looking to down-size and enjoy life, this home checks all the boxes. Solid wood cabinetry with comfort height vanities and raised toilets, granite/marble counter tops, stainless appliances, LVP flooring, ceiling fans in both bedrooms and living room, walk-in closet and shower in master and both bathrooms have linen closets!

1/2
1960 Salisbury Road
$238,900
- 2 bedrooms
- 2 baths
- 1104 sq ft
- MLS# : 100550249
- Built in 2026
Nearby schools
- Brunswick County Schools
Actual schools may vary. We recommend verifying with the local school district, the school assignment and enrollment process.
Map & directions
Mortgage rates & offers
Contact
Copyright © 2026 HIVE MLS. All rights reserved. All information provided by the listing agent/broker is deemed reliable but is not guaranteed and should be independently verified.
Discover More Great Communities
Select additional listings for more information
By providing your name and contact information and clicking the I'm Interested! button, you consent and agree to receive marketing communications from NewHomeSource and the builder(s) selected above, including emails, calls or text messages using an automatic telephone dialing system or an artificial or prerecorded voice. Your agreement is not a condition to purchasing any property, goods or services, and you may call us instead of submitting the information online. You also acknowledge and agree that you can revoke your authorization at any time. Your consent herein also applies to any future registration on national or state Do-No-Call lists. For mobile phones, standard message and data charges apply. Consult our Privacy Policy for additional information, including unsubscribe options. You also agree to our Privacy Policy, including TCPA Policy and Terms of Use.
Way to Go!
An agent will be in contact soon!