729 MARION OAKS
ActiveOcala, FL 34473
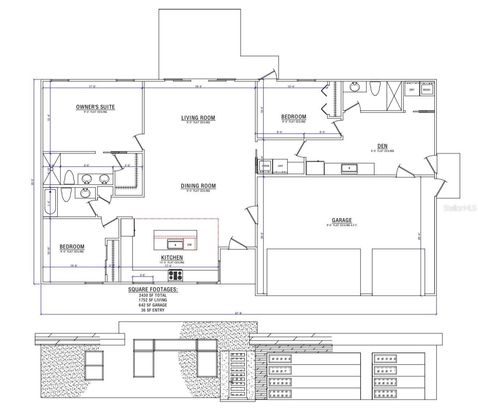
One or more photo(s) has been virtually staged. Pre-Construction. To be built. Brand New Home to be built. Build by Benaiah Home Builders! Be the first to call this beautiful newly built home your own! Thoughtfully designed with modern living in mind, this home will feature an open-concept layout, quality craftsmanship, and stylish finishes throughout. The home is built with commercial grade cold formed steel. This is a multigenerational home with a mother-in-law suite. Termite fire water and mold resistance. New high school being built, new elementary being built perfect home. Brand-new construction, abundant natural light, Modern kitchen with quality cabinetry and finishes, Spacious bedrooms, Located in a desirable, growing neighborhood. Now is the perfect time to secure a home that’s fresh, modern, and built to last. Don’t miss the opportunity to own a brand-new home and watch it come to life from the ground up! Call me today! for details, timelines, and customization options.

1/16
729 MARION OAKS
$417,000
- 3 bedrooms
- 3 baths
- 1752 sq ft
- MLS# : O6376296
- Built in 2026
Nearby schools
- Marion County School District
Actual schools may vary. We recommend verifying with the local school district, the school assignment and enrollment process.
Map & directions
Mortgage rates & offers
Contact
FPO
Keller Williams Classic Realty
Copyright © 2026 Stellar MLS. All rights reserved. All information provided by the listing agent/broker is deemed reliable but is not guaranteed and should be independently verified.
Discover More Great Communities
Select additional listings for more information
By providing your name and contact information and clicking the I'm Interested! button, you consent and agree to receive marketing communications from NewHomeSource and the builder(s) selected above, including emails, calls or text messages using an automatic telephone dialing system or an artificial or prerecorded voice. Your agreement is not a condition to purchasing any property, goods or services, and you may call us instead of submitting the information online. You also acknowledge and agree that you can revoke your authorization at any time. Your consent herein also applies to any future registration on national or state Do-No-Call lists. For mobile phones, standard message and data charges apply. Consult our Privacy Policy for additional information, including unsubscribe options. You also agree to our Privacy Policy, including TCPA Policy and Terms of Use.
Way to Go!
An agent will be in contact soon!