5983 Lake Shore Drive
ActiveNaylor, GA 31641
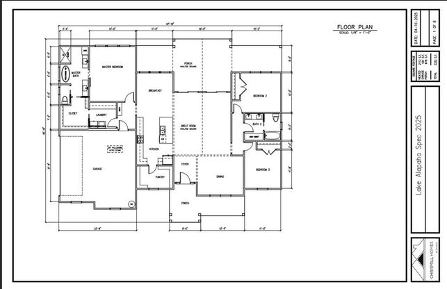
Still time to pick your colors and finishes and receive significant rate buy downs for life of the loan or closing cost, see below for details. Welcome to your private lakefront oasis at Lake Alapaha—a stunning 3-bedroom, 2-bathroom new construction masterpiece by Legendary Construction. This elegant 2,113 sq ft home sits directly on the shores of a 220-acre deepwater private lake, with steps from your door to the water for effortless enjoyment of bass, speckled perch, catfish, water sports, swimming, boating, and relaxation. Start mornings with coffee in the Breakfast Nook's large window, taking in panoramic lake views while personalizing your dream finishes, colors, granite countertops, and more. The open-concept layout exudes warmth: vaulted Great Room flows into a gourmet Kitchen with stainless steel appliances and custom cabinetry. Luxurious tile Master Bath, lake-view bedrooms, second full bath, Dining Room, Laundry, Pantry, and generous Garage complete the thoughtful design.Step onto the large vaulted back porch for breathtaking sunsets, or relax on the welcoming Front Porch. Exclusive community perks include boat houses, docks, swimming beach, volleyball court, bonfire pit, powered pavilions, and boat ramp.Builder Financing Incentives: Qualified buyers using our select lender can choose a permanent rate buydown for the life of a 30-year fixed loan or generous closing cost assistance. Restrictions apply; subject to qualification, lender approval, and terms. Legendary Construction and preferred lenders are Equal Housing Opportunity providers.

1/17
5983 Lake Shore Drive
$625,000
- 3 bedrooms
- 2 baths
- 2113 sq ft
- MLS# : 148435
- Built in 2026
Map & directions
Mortgage rates & offers
Contact
FPO
Canopy Realty Group
Copyright © 2026 South Georgia MLS (Valdosta). All rights reserved. All information provided by the listing agent/broker is deemed reliable but is not guaranteed and should be independently verified.
Discover More Great Communities
Select additional listings for more information
By providing your name and contact information and clicking the I'm Interested! button, you consent and agree to receive marketing communications from NewHomeSource and the builder(s) selected above, including emails, calls or text messages using an automatic telephone dialing system or an artificial or prerecorded voice. Your agreement is not a condition to purchasing any property, goods or services, and you may call us instead of submitting the information online. You also acknowledge and agree that you can revoke your authorization at any time. Your consent herein also applies to any future registration on national or state Do-No-Call lists. For mobile phones, standard message and data charges apply. Consult our Privacy Policy for additional information, including unsubscribe options. You also agree to our Privacy Policy, including TCPA Policy and Terms of Use.
Way to Go!
An agent will be in contact soon!