2592 Camp Mitchell Road
ActiveGrayson, GA 30017
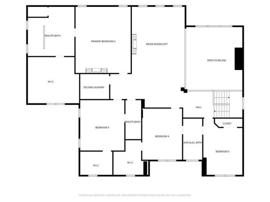
This architecturally refined residence, now nearing completion, presents a thoughtfully designed luxury floorplan that blends modern functionality with timeless craftsmanship. The home features a private in-law suite on the main level with its own ensuite bath and laundry area, while the primary suite is positioned upstairs to create a balanced layout ideal for everyday living and hosting extended family or guests. From the moment you enter, the home reveals a bright open-concept design filled with natural light, soaring ceilings, wide-plank hardwood flooring, curated designer lighting, and custom millwork that showcase exceptional craftsmanship throughout. The spacious living room is anchored by a striking fireplace and flows seamlessly into the chef's kitchen, creating an inviting environment for both entertaining and daily living. The gourmet kitchen is centered around an oversized island and features premium cabinetry, porcelain countertops, designer backsplash, and a spacious walk-in pantry. A sunlit breakfast area overlooks the covered patio, while the formal dining room provides an elegant setting for gatherings and special occasions. The main-level guest suite offers privacy and flexibility with its own ensuite bath and walk-in closet, making it ideal for visitors or multigenerational living. A dedicated home office, stylish half bath, mudroom, and access to both the two-car garage and separate third-car garage complete the main level. Upstairs, the expansive primary suite serves as a private retreat featuring its own fireplace, a spa-inspired bath with dual vanities, freestanding soaking tub, oversized frameless glass shower, and a custom walk-in closet. A large media room and loft with fireplace and wet bar provide a comfortable gathering space for movie nights or entertaining. Three additional secondary suites include walk-in closets and either private ensuite baths or a Jack-and-Jill bath, while a second laundry room adds everyday convenience. Outdoor living is equally inviting with a covered rear patio designed for entertaining or quiet evenings, overlooking a level backyard with space for a future enhancements. Additional highlights include four-sided brick construction, professional landscaping, irrigation system, foam-insulated attic, zoned HVAC systems, tankless water heater, and energy-efficient windows. Ideally located near Braselton Highway, Sugarloaf Parkway, and I-85, residents enjoy convenient access to shopping, dining, parks, and top-rated Gwinnett County schools. Professional photography will be added as construction reaches completion.

1/17
2592 Camp Mitchell Road
$1,249,000
- 5 bedrooms
- 5 baths
- 5189 sq ft
- MLS# : 7702940
- Built in 2025
Nearby schools
- Gwinnett County Schools
Actual schools may vary. We recommend verifying with the local school district, the school assignment and enrollment process.
Map & directions
Mortgage rates & offers
Contact
FPO
Community Partners LLC dba Keller Williams Realty Community Partners
Copyright © 2026 First Multiple Listing Service, Inc.. All rights reserved. All information provided by the listing agent/broker is deemed reliable but is not guaranteed and should be independently verified.
Discover More Great Communities
Select additional listings for more information
By providing your name and contact information and clicking the I'm Interested! button, you consent and agree to receive marketing communications from NewHomeSource and the builder(s) selected above, including emails, calls or text messages using an automatic telephone dialing system or an artificial or prerecorded voice. Your agreement is not a condition to purchasing any property, goods or services, and you may call us instead of submitting the information online. You also acknowledge and agree that you can revoke your authorization at any time. Your consent herein also applies to any future registration on national or state Do-No-Call lists. For mobile phones, standard message and data charges apply. Consult our Privacy Policy for additional information, including unsubscribe options. You also agree to our Privacy Policy, including TCPA Policy and Terms of Use.
Way to Go!
An agent will be in contact soon!