2345 Pickawillany Way
ActivePiqua, OH 45356
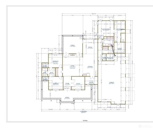
This thoughtfully designed new construction home at 2345 Pickawillany Way offers a well planned single level layout with approximately 2,455 square feet of living space and is scheduled for completion in summer 2026. The open concept design centers around a spacious kitchen, dining area and living room with vaulted ceilings, creating an inviting space for everyday living and entertaining. The kitchen includes a large pantry and flows seamlessly into the main living areas. A dedicated home office is located just off the foyer, ideal for remote work or study. The private primary suite is situated on its own side of the home and features a walk-in closet and a en-suite bath. Two additional bedrooms share a full bath on the opposite side of the home, offering comfort and separation for guests or family members. Additional highlights include a convenient laundry area, mechanical room and an attached garage. Enjoy outdoor living with covered porch spaces that extend the usable living area and enhance curb appeal. The home is currently at the foundation stage, and depending on when the buyer goes under contract, there may be an opportunity to select certain interior finishes and design elements, allowing for a more personalized final product. A great opportunity to secure a new build with flexible options in a desirable setting, all with anticipated completion in summer 2026.

1/4
2345 Pickawillany Way
$574,900
- 3 bedrooms
- 2 baths
- 2455 sq ft
- MLS# : 1043535
- Built in 2026
Nearby schools
- Piqua City Schools
Actual schools may vary. We recommend verifying with the local school district, the school assignment and enrollment process.
Map & directions
Mortgage rates & offers
Contact
FPO
Coldwell Banker Heritage Realtors
Copyright © 2026 West Metro Board of REALTORS®. All rights reserved. All information provided by the listing agent/broker is deemed reliable but is not guaranteed and should be independently verified.
Discover More Great Communities
Select additional listings for more information
By providing your name and contact information and clicking the I'm Interested! button, you consent and agree to receive marketing communications from NewHomeSource and the builder(s) selected above, including emails, calls or text messages using an automatic telephone dialing system or an artificial or prerecorded voice. Your agreement is not a condition to purchasing any property, goods or services, and you may call us instead of submitting the information online. You also acknowledge and agree that you can revoke your authorization at any time. Your consent herein also applies to any future registration on national or state Do-No-Call lists. For mobile phones, standard message and data charges apply. Consult our Privacy Policy for additional information, including unsubscribe options. You also agree to our Privacy Policy, including TCPA Policy and Terms of Use.
Way to Go!
An agent will be in contact soon!