2000 Ford Road
ActiveDelaware, OH 43015
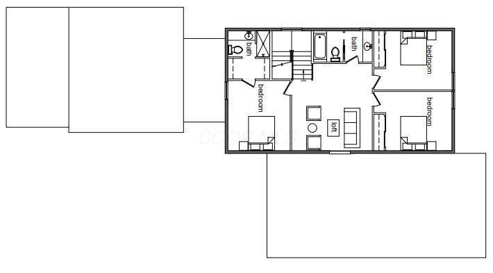
An opportunity to build a custom high-performance home on 2.2 scenic acres on quiet Ford Road in Delaware. This thoughtfully designed 4,610 square foot residence offers 5 bedrooms, 4.5 baths, a main-level office, upstairs loft, fully finished basement, and a 3-car garage-all in a peaceful country setting just minutes from Dublin, Powell, and downtown Delaware. Designed to maximize natural light, expansive windows and intentional sightlines create bright, welcoming living spaces throughout. The main level offers an open-concept layout ideal for entertaining, along with a dedicated office for work-from-home flexibility. Upstairs, a spacious loft provides additional living space for gathering, studying, or relaxing. The fully finished basement with egress window adds valuable square footage and versatility-perfect for guests, recreation, or multi-generational living. Function meets organization with abundant storage throughout, including a large mudroom, walk-in pantry, and integrated laundry area designed for real life. Built using high-performance construction principles, this home prioritizes durability, energy efficiency, indoor air quality, and year-round comfort. A carefully engineered building envelope, advanced insulation strategies, and right-sized mechanical systems work together to create a quieter, healthier, and more efficient living environment. Topped with a standing seam metal roof backed by a double lifetime warranty, this home is designed for long-term resilience and low maintenance. This is a to-be-built custom home with an estimated 6-9 month build timeline from contract, allowing buyers to personalize finishes and select design elements. Architecturally clean. Intentionally designed. Built different.

1/7
2000 Ford Road
$1,400,000
- 5 bedrooms
- 4 baths
- 4610 sq ft
- MLS# : 226003383
- Built in 2026
Nearby schools
- Delaware City
- Buckeye Valley Local Schools
- Olentangy Local Schools
Actual schools may vary. We recommend verifying with the local school district, the school assignment and enrollment process.
Map & directions
Mortgage rates & offers
Contact
FPO
Consultants Realty, LLC
Copyright © 2026 Columbus and Central Ohio Multiple Listing Service. All rights reserved. All information provided by the listing agent/broker is deemed reliable but is not guaranteed and should be independently verified.
Discover More Great Communities
Select additional listings for more information
By providing your name and contact information and clicking the I'm Interested! button, you consent and agree to receive marketing communications from NewHomeSource and the builder(s) selected above, including emails, calls or text messages using an automatic telephone dialing system or an artificial or prerecorded voice. Your agreement is not a condition to purchasing any property, goods or services, and you may call us instead of submitting the information online. You also acknowledge and agree that you can revoke your authorization at any time. Your consent herein also applies to any future registration on national or state Do-No-Call lists. For mobile phones, standard message and data charges apply. Consult our Privacy Policy for additional information, including unsubscribe options. You also agree to our Privacy Policy, including TCPA Policy and Terms of Use.
Way to Go!
An agent will be in contact soon!