Lot 603 Club House Drive
ActiveLa Valle, WI 53941
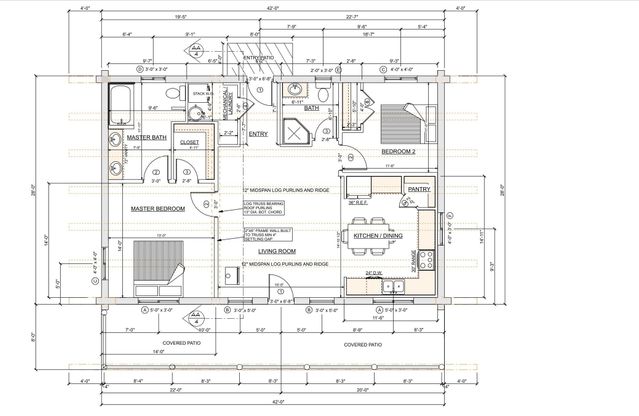
Construction has not yet begun on this beautiful ranch-style log home—giving you the chance to get in early and make it your own. The thoughtfully designed floor plan will feature a spacious living room that flows seamlessly into a nicely sized kitchen, perfect for everyday living and entertaining. The primary suite will offer a private retreat with a walk-in closet and en-suite bath. Enjoy the convenience of main floor laundry and the comfort of one-level living. Step outside to relax on the covered front and backyard patios—ideal for enjoying peaceful surroundings. A 2-car detached garage provides plenty of storage and convenience. Located on an offshore lot at Dutch Hollow Lake, this is your opportunity to build the lake-area home you’ve been dreaming of. Still time to personalize finishes and details!

1/15
Lot 603 Club House Drive
$445,000
- 2 bedrooms
- 2 baths
- 1176 sq ft
- MLS# : 2016614
- Built in 2026
Map & directions
Mortgage rates & offers
Contact
FPO
Gavin Bros. Auctioneers llc.
Copyright © 2026 REALTORS® Association of South Central Wisconsin. All rights reserved. All information provided by the listing agent/broker is deemed reliable but is not guaranteed and should be independently verified.
Discover More Great Communities
Select additional listings for more information
By providing your name and contact information and clicking the I'm Interested! button, you consent and agree to receive marketing communications from NewHomeSource and the builder(s) selected above, including emails, calls or text messages using an automatic telephone dialing system or an artificial or prerecorded voice. Your agreement is not a condition to purchasing any property, goods or services, and you may call us instead of submitting the information online. You also acknowledge and agree that you can revoke your authorization at any time. Your consent herein also applies to any future registration on national or state Do-No-Call lists. For mobile phones, standard message and data charges apply. Consult our Privacy Policy for additional information, including unsubscribe options. You also agree to our Privacy Policy, including TCPA Policy and Terms of Use.
Way to Go!
An agent will be in contact soon!