11051 Easy Street
ActiveDisputanta, VA 23842
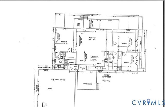
Welcome Home to this three bedroom two bath home situated on 5 acres in the heart of Prince George. The open living room and kitchen allows for easy entertaining and family time. The master bedroom features a walk-in closet, large master bathroom with double sinks and oversized walk-in shower. The additional 2 bedsrooms are generous in size and have spacious closets. The secound bathroom has a huge linen closet and tub shower combination. The eat-in area leads to a 12x12 deck that overlooks the rear yard. Don't want to leave off the attached two car garage. Don't miss the oopportunity to customize this home today!

1/7
11051 Easy Street
$429,000
- 3 bedrooms
- 2 baths
- 1402 sq ft
- MLS# : 2603727
- Built in 2026
Nearby schools
- Prince George County Public Schools
Actual schools may vary. We recommend verifying with the local school district, the school assignment and enrollment process.
Map & directions
Mortgage rates & offers
Contact
FPO
Hometown Realty Services
Copyright © 2026 Central Virginia Regional Multiple Listing Service. All rights reserved. All information provided by the listing agent/broker is deemed reliable but is not guaranteed and should be independently verified.
Discover More Great Communities
Select additional listings for more information
By providing your name and contact information and clicking the I'm Interested! button, you consent and agree to receive marketing communications from NewHomeSource and the builder(s) selected above, including emails, calls or text messages using an automatic telephone dialing system or an artificial or prerecorded voice. Your agreement is not a condition to purchasing any property, goods or services, and you may call us instead of submitting the information online. You also acknowledge and agree that you can revoke your authorization at any time. Your consent herein also applies to any future registration on national or state Do-No-Call lists. For mobile phones, standard message and data charges apply. Consult our Privacy Policy for additional information, including unsubscribe options. You also agree to our Privacy Policy, including TCPA Policy and Terms of Use.
Way to Go!
An agent will be in contact soon!