3419 Pinewood Street
ActiveMontrose, CO 81401
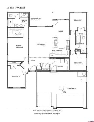
Shawn Carroll, NextHome Virtual, O: 970-258-9300, shawn@nexthomevirtual.com, www.crenmls.com: UNDER CONSTRUCTION with an estimated completion in mid-April 2026.This beautifully crafted LaSalle model offers 1,609 square feet of thoughtfully designed living space and a spacious three-car garage, built by one of Montrose’s premier builders. Designed with a zero-step foundation, the home provides seamless entry from the front door, garage, and back patio, offering both convenience and long-term accessibility. Inside, the open-concept great room features a vaulted living room ceiling with a ceiling fan and a stunning gas fireplace that creates a warm, inviting focal point. The kitchen is equally impressive, showcasing a large island with room for barstools, a beautifully tiled backsplash, under-cabinet lighting, a pantry, and an upgraded stainless steel appliance package. The dining area is enhanced by a French door that opens to the back patio, perfect for indoor-outdoor living. The split floor plan offers both privacy and functionality. The primary suite features a vaulted ceiling with ceiling fan, a spacious walk-in closet, and a luxurious ensuite bath complete with a dual-sink vanity, beautifully tiled shower with a Euro door, a separate soaking tub, and a private toilet. One additional bedroom is located on the same side as the primary suite, while two more bedrooms and a full bath are situated on the opposite side of the home. Additional features include 9-foot ceilings, forced air gas heat, central air conditioning, an on-demand hot water heater, and a radon mitigation system already in place. The home’s exterior showcases excellent curb appeal with lap siding, shake accents in the eaves, and stone details. The large three-car garage includes primed and textured walls, while a convenient sidewalk leads from the driveway to the covered back porch. The fully fenced backyard features durable vinyl fencing and an irrigation backflow system for easy future landscaping. Located in a newer subdivision just minutes from downtown Montrose and the southern commercial district, this home offers the perfect blend of convenience, mountain views, sunshine, and quality craftsmanship—an exceptional opportunity to experience the very best of Montrose living. (Photo is of a rendition of the LaSalle model and actual exterior colors and stone placement may be different. Additional photos provide the interior and exterior colors planned for this home. Builder has a model home where buyer can view finish level and colors planned.)

1/4
3419 Pinewood Street
$559,000
- 4 bedrooms
- 2 baths
- 1609 sq ft
- MLS# : 831765
- Built in 0
Nearby schools
- Montrose County School District Re-1j
Actual schools may vary. We recommend verifying with the local school district, the school assignment and enrollment process.
Map & directions
Mortgage rates & offers
Contact
FPO
NextHome Virtual
Copyright © 2026 Colorado Real Estate Network Inc.. All rights reserved. All information provided by the listing agent/broker is deemed reliable but is not guaranteed and should be independently verified.
Discover More Great Communities
Select additional listings for more information
By providing your name and contact information and clicking the I'm Interested! button, you consent and agree to receive marketing communications from NewHomeSource and the builder(s) selected above, including emails, calls or text messages using an automatic telephone dialing system or an artificial or prerecorded voice. Your agreement is not a condition to purchasing any property, goods or services, and you may call us instead of submitting the information online. You also acknowledge and agree that you can revoke your authorization at any time. Your consent herein also applies to any future registration on national or state Do-No-Call lists. For mobile phones, standard message and data charges apply. Consult our Privacy Policy for additional information, including unsubscribe options. You also agree to our Privacy Policy, including TCPA Policy and Terms of Use.
Way to Go!
An agent will be in contact soon!