1407 Herb Ln
ActiveHolmen, WI 54636
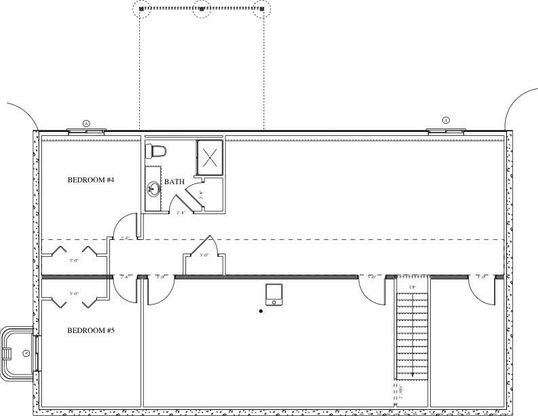
Brand-new construction in one of Wisconsin's fastest-growing communities--Holmen! This thoughtfully designed home offers main level living with 3 bedrooms and 2 baths, including a private primary suite along with convenient main-floor laundry. The open-concept great room with fireplace flows seamlessly into a cook's kitchen that features light-stained maple cabinetry with island. The finished lower level expands your space with 2 additional bedrooms, a full bath, and a large family room featuring a wet bar--ideal for hosting or relaxing. Modern finishes, functional layout, and quality craftsmanship make this home a standout opportunity!

1/20
1407 Herb Ln
$629,900
- 5 bedrooms
- 3 baths
- 2900 sq ft
- MLS# : 1951432
- Built in 2026
Nearby schools
- Holmen School District
Actual schools may vary. We recommend verifying with the local school district, the school assignment and enrollment process.
Map & directions
Mortgage rates & offers
Contact
FPO
RE/MAX Results
Copyright © 2026 Metro MLS. All rights reserved. All information provided by the listing agent/broker is deemed reliable but is not guaranteed and should be independently verified.
Discover More Great Communities
Select additional listings for more information
By providing your name and contact information and clicking the I'm Interested! button, you consent and agree to receive marketing communications from NewHomeSource and the builder(s) selected above, including emails, calls or text messages using an automatic telephone dialing system or an artificial or prerecorded voice. Your agreement is not a condition to purchasing any property, goods or services, and you may call us instead of submitting the information online. You also acknowledge and agree that you can revoke your authorization at any time. Your consent herein also applies to any future registration on national or state Do-No-Call lists. For mobile phones, standard message and data charges apply. Consult our Privacy Policy for additional information, including unsubscribe options. You also agree to our Privacy Policy, including TCPA Policy and Terms of Use.
Way to Go!
An agent will be in contact soon!