1315 Curlew Circle
ActiveSumter, SC 29150
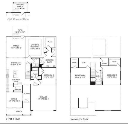
Water View Lot in Heritage Bay .The Reedy by Veranda Homes is a stunning new construction home nestled on a premium lot with serene backyard water views in the highly desirable Heritage Bay community. Just minutes from Shaw AFB and downtown Sumter. This all-brick beauty offers 4 bedrooms, 3 full bathrooms, and 2,826 square feet of thoughtfully designed living space. The open-concept layout is ideal for both everyday living and entertaining. The chef's kitchen features quartz countertops, white shaker cabinetry, a tile backsplash, stainless steel appliances, gas range, and elegant glass pendant lighting. Luxury vinyl plank flooring flows throughout the main living areas, with ceramic tile in the laundry room and bathrooms for added durability and style. The spacious, spa-inspired owner's suite includes a dual vanity and tiled shower surround, creating a relaxing retreat at the end of the day. Step outside to enjoy peaceful water views from your backyard, complemented by professional landscaping and a full irrigation system for low-maintenance living. Quality craftsmanship, modern finishes, and a picturesque setting make this home a standout. Stock photos used.

1/16
1315 Curlew Circle
$358,900
- 4 bedrooms
- 3 baths
- 2926 sq ft
- MLS# : 201844
- Built in 2026
Nearby schools
- Sumter 01 School District
Actual schools may vary. We recommend verifying with the local school district, the school assignment and enrollment process.
Map & directions
Mortgage rates & offers
Contact
FPO
Re/Max Summit LLC
Copyright © 2026 Sumter Board of Realtors. All rights reserved. All information provided by the listing agent/broker is deemed reliable but is not guaranteed and should be independently verified.
Discover More Great Communities
Select additional listings for more information
By providing your name and contact information and clicking the I'm Interested! button, you consent and agree to receive marketing communications from NewHomeSource and the builder(s) selected above, including emails, calls or text messages using an automatic telephone dialing system or an artificial or prerecorded voice. Your agreement is not a condition to purchasing any property, goods or services, and you may call us instead of submitting the information online. You also acknowledge and agree that you can revoke your authorization at any time. Your consent herein also applies to any future registration on national or state Do-No-Call lists. For mobile phones, standard message and data charges apply. Consult our Privacy Policy for additional information, including unsubscribe options. You also agree to our Privacy Policy, including TCPA Policy and Terms of Use.
Way to Go!
An agent will be in contact soon!